Dom pri studni a Dom pri orechu
Rekonštrukcia staršieho domu v radovej zástavbe vo vidieckom prostredí
Objednané služby
štúdia, projekt
Autor
Martin Medlen
Miesto
Vištuk
Jestvujúci stav
Vizualizácie: Dom pri studni
Vizualizácie: Dom pri orechu
Hmotová štúdia interiéru: Dom pri studni
Hmotová štúdia interiéru: Dom pri orechu
Plány
situácia
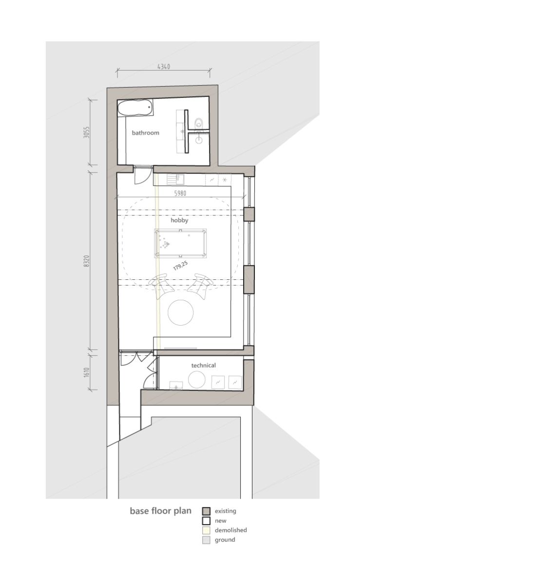
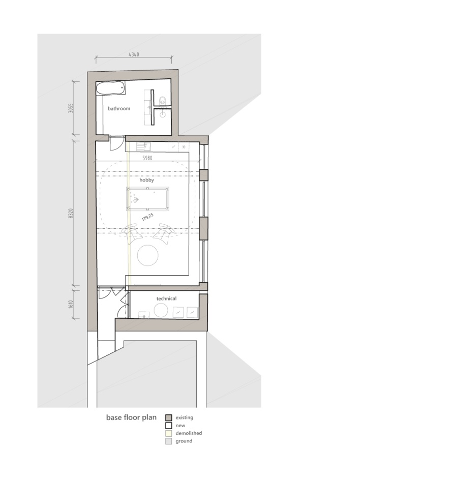
pôdorys suterénu
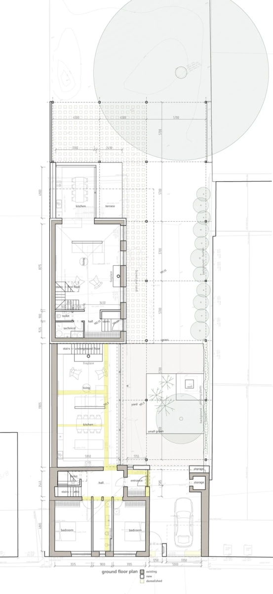
pôdorys prízemia
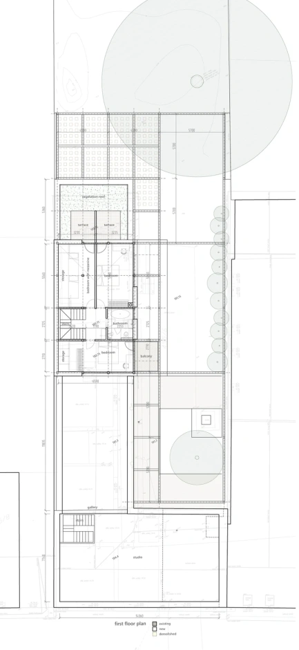
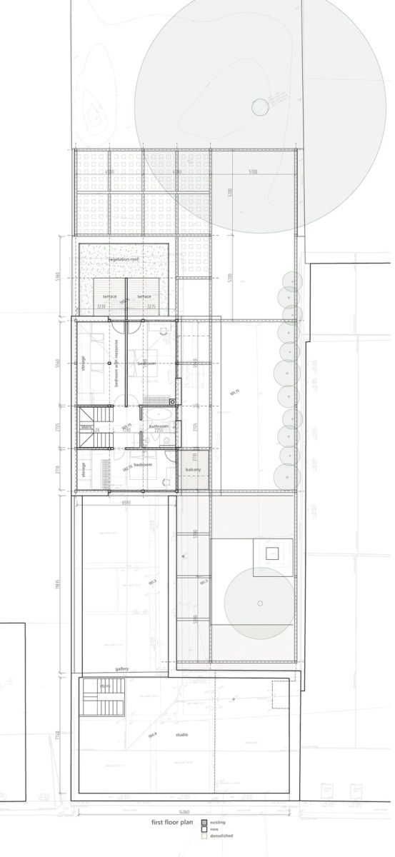
pôdorys poschodia
rodinný dom
rekonštrukcia
radová zástavba
dvojdom
Vištuk
podjazd
úsporný dom
racionálny dom
murovaný dom
krov
priznaný krov
zelená strecha
lamely
presklená stena
oceľ
sklo
drevo
kameň
betón
oplotenie
zem voda
chladený strop
A0
galéria
Zaujal Vás tento projekt?
V prípade záujmu o nezáväznú konzultáciu alebo cenovú ponuku za naše služby nás kontaktujte.