Kompaktná prestavba domu
Účelom prestavby je citlivo nadviazať na technické hodnoty existujúceho domu s prihliadaním na udržateľnosť investície a vytvoriť úsporný obytný priestor bez kompromisov.
Objednané služby
štúdia, projekt
Autor
Martin Medlen
Spolupráca
Róbert Sekula
Miesto
Tureň
Stavebný princíp
Po odstránení strechy a stropu sa nosné murivo zarovná na jednu úroveň, na ktorej sa vyhotovia priznané železobetónové vence. Existujúce múry domu sa zateplia, zvnútra nanovo omietnu. Podlahy sa vyhotovia na novej zateplenej betónovej doske. Tieto práce tvoria samostatnú etapu. Zvyšné práce majú charakter drevostavby, tj. nové nosné stĺpiky, stropy, krov a prestavba terasy, tiež na existujúcich múroch.
Prevádzkový princíp
Dom má slúžiť ako jednopodlažný priestor pre celú rodinu s možnosťou budúceho zobytnenia povaly bez nutnosti veľkých stavebných zásahov na prízemí. Jednoduchý tvar a dobrá poloha nosných múrov dáva možnosť pre uplatnenie kompaktnej stavby, ktorá tento zámer naplní.
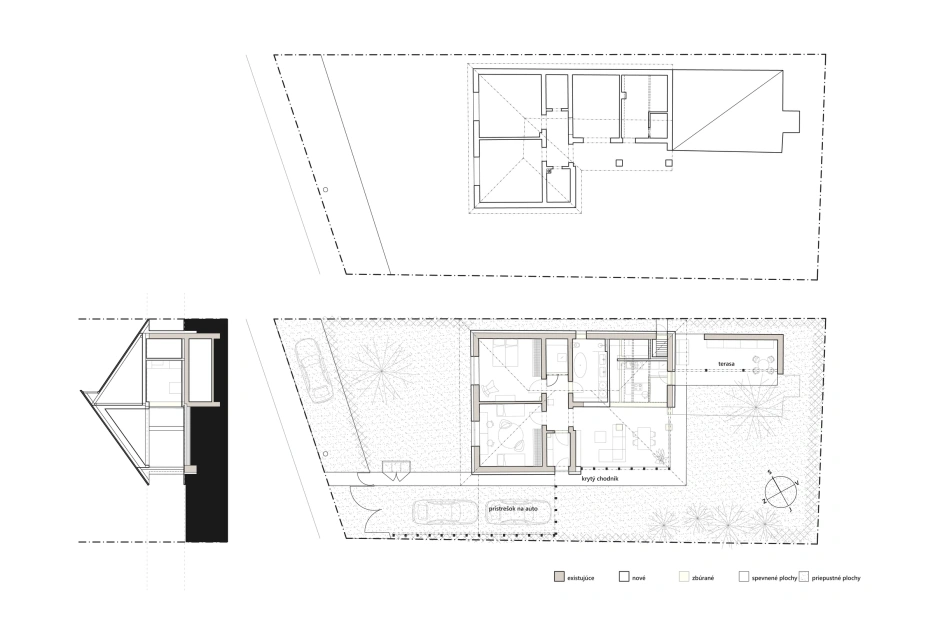
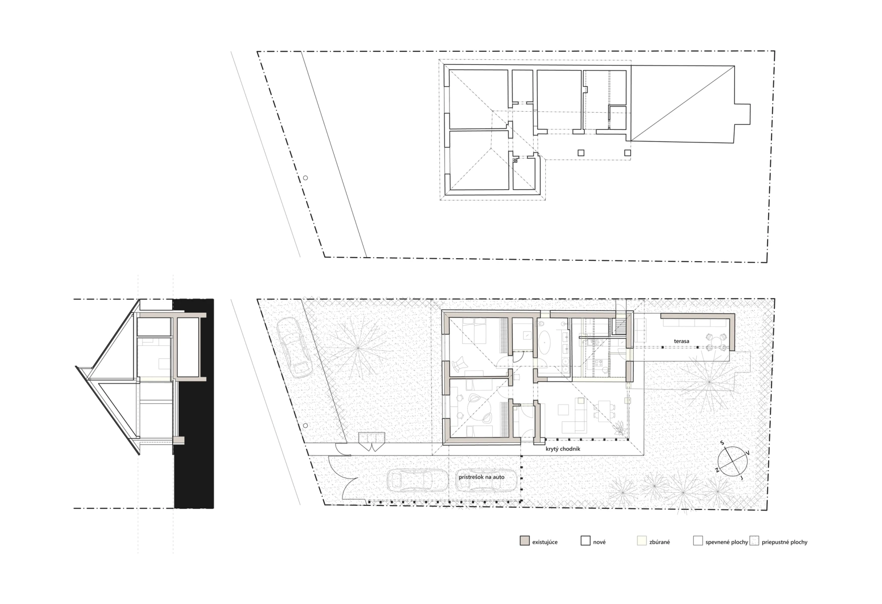
schéma prestavby
Zhrnutie
Dom tvoria dva architektonicko-stavebné kontrastné celky: 1. existujúca rigidná časť stavby s novou podlahou, zateplením a omietkami; 2. drevostavba novej obývačky, stropu a strechy postavená nasucho, s transparentnými výplňami /oknami/ a ľahkými pozinkovanými /alebo hliníkovými povrchmi. Jednoduchosť výstavby a prehľadná etapizácia procesov šetrí energiu a náklady spojené hlavne s logistikou subdodávok a časom prestavby, čo pri rekonštrukcii často spôsobuje výdavky navyše.
Súčasný stav
Vizualizácie
Plány
rodinný dom
rekonštrukcia
Tureň
prístrešok
letná kuchyňa
úsporný dom
murovaný dom
krov
priznaný krov
presklená stena
sklo
drevo
low tech
vzduch voda
rekuperácia
podlahové vykurovanie
hliníková krytina
vlnkový plech
vykurovanie slnkom
A0
Zaujal Vás tento projekt?
V prípade záujmu o nezáväznú konzultáciu alebo cenovú ponuku za naše služby nás kontaktujte.