Rodinný dom Záhrady Devín
Zámerom našich klientov, štvorčlennej rodiny, bolo navrhnúť dom s dvoma nadzemnými podlažiami, suterénom, s letnou kuchyňou, krytou terasou s výhľadom na hrad Devín a krytým parkovacím miestom.
Stav
štúdia, projekt, realizácia
Spoluautori
Helena Vojtková, Martin Medlen
Miesto
Záhrady Devín
Úžitková plocha
202,7 m²
Zastavaná plocha
134,85 m²
Umiestnenie a charakter
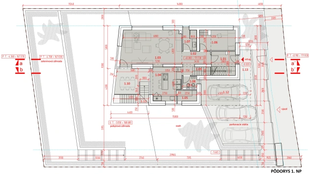
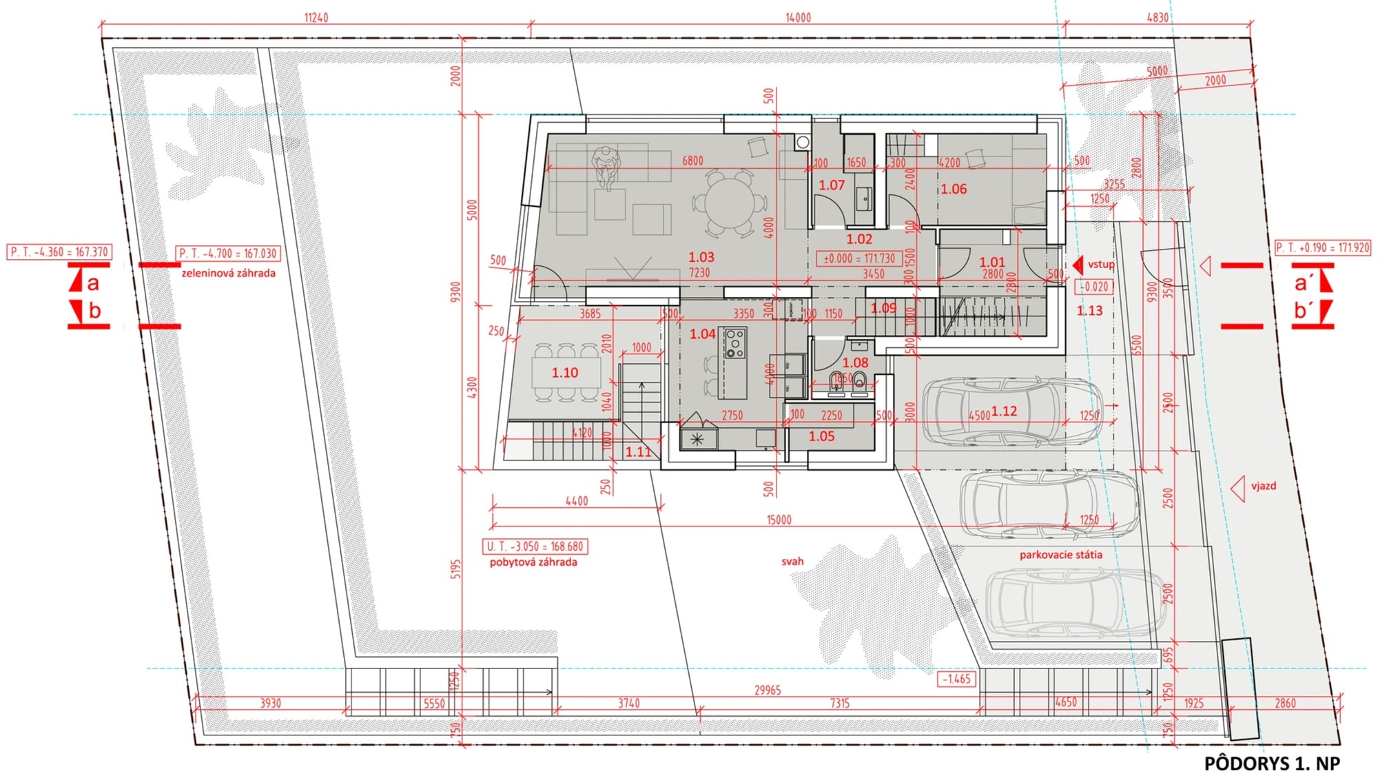
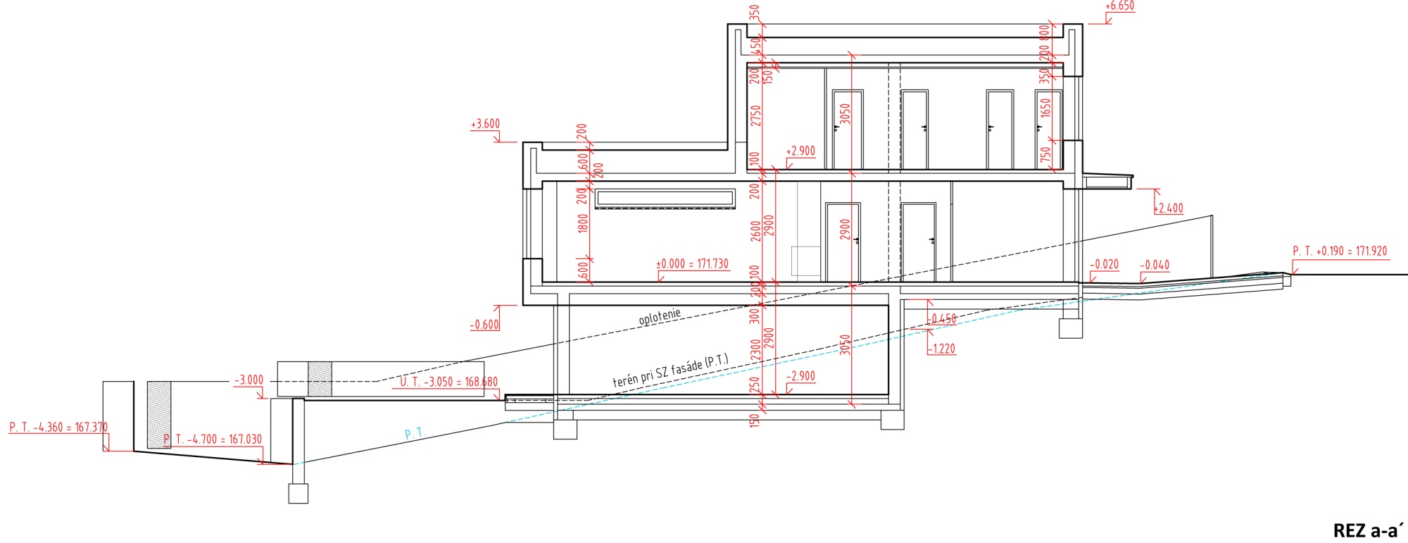
Rodinný dom je umiestnený v developovanom území v Devíne, na svahovitom pozemku s juhozápadnou orientáciou. Prístup na pozemok z ulice je v hornej časti svahu. Pri hľadaní konepcie pre dom sme sa rozhodli pre racionálnu prevádzku a kompaktný objem z viacerých dôvodov: efektívne narábanie s priestormi na pozemku, jednoduchá výstavba vo svahu, minimalizácia komplikovaných detailov pri styku domu s terénom, jednoduché odvodnenie priľahlého terénu okolo stavby. Okrem samotnej výstavby domu uvažujeme na pozemku aj s návrhom oporných múrikov. Prvý pre vytvorenie spevnenej roviny pre parkovacie miesta, druhý pre zabezpečenie zelenej roviny v spodnej časti pozemku, ktorou zvýšime potenciál využitia svahu. Celkový charakter domu je čistý a zámer našich zákazníkov je jasne čitateľný.
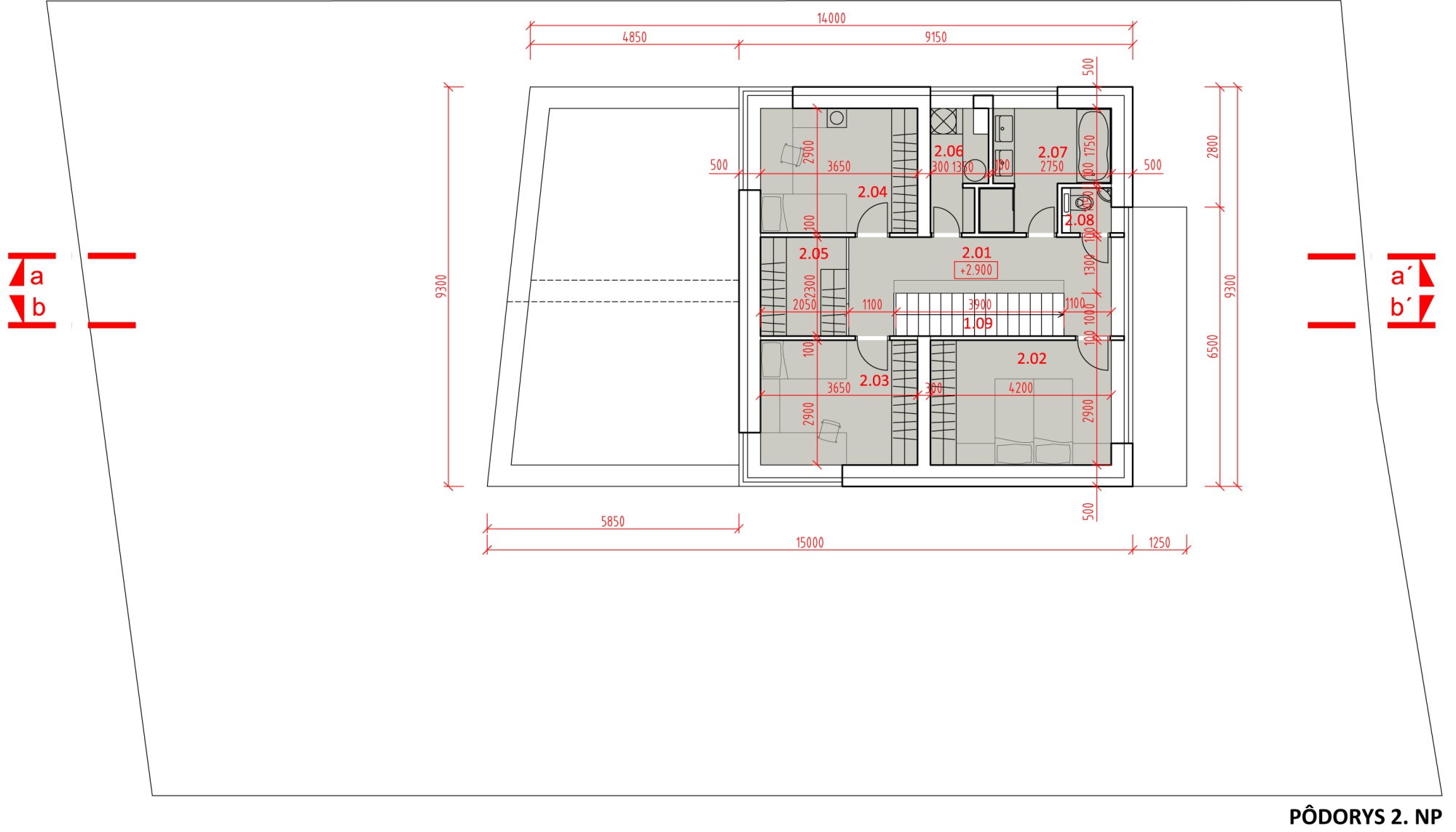
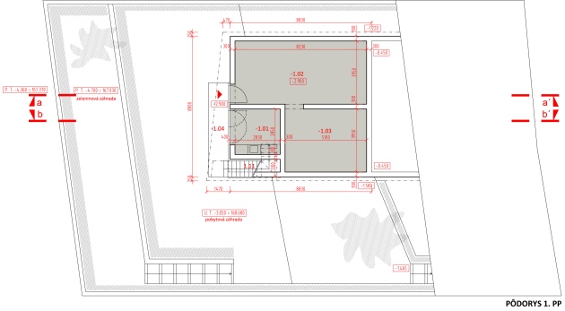
Úrovne
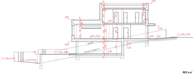
Dom je netypický prístupom z hornej časti svahu. S hornou úrovňou je bez schodov spojená podlaha prízemia, na ktorej je spoločná časť s príslušenstvom, hosťovská alebo bezbariérová časť pre seniora, krytá exteriérová terasa a kryté parkovacie miesto. Na poschodí je súkromná časť rodiny. Na spodnú zelenú rovinu nadväzuje suterén s letnou kuchyňou a schodisko s výstupom priamo na krytú terasu prízemia. V najnižšej úrovni pozemku je plocha pre úžitkovú záhradu. Všetky úrovne na pozemku sú prepojené jednoduchými terénnymi schodiskami.
Strecha
Dom má dve strešné úrovne. Strecha nad poschodím je plochá so štrkovým násypom a strecha prízemia je zelená. Jej výhody sú okrem príjemného vzhľadu aj ochrana strešných vrstiev proti UV žiareniu, prehrievaniu, zachytávanie prachu a znečistenia, ale hlavne zadržiavanie minimálne 50% zrážkovej vody padajúcej na strechu. Tým sa zvyšuje životnosť strechy a samotný komfort v interiéri. Údržba zelenej strechy je minimálna a výhľad z okien poschodia je podčiarknutý nazeleno.
Realizácia
Vizualizácie
Plány
rodinný dom
úsporný dom
dom vo svahu
racionálny dom
Devín
murovaný dom
betónový dom
presklená stena
sklo
drevo
kov
betón
vzduch voda
podlahové vykurovanie
rekuperácia
A0
vykurovanie slnkom
Zaujal Vás tento projekt?
V prípade záujmu o nezáväznú konzultáciu alebo cenovú ponuku za naše služby nás kontaktujte.