Rodinny_dom_JT_4.jpg

Rodinný dom J+T

Základné požiadavky na túto štúdiu boli: vysporiadať sa so svahovým pozemkom, navrhnúť pekné a funkčné exteriérové atrium a dvojgaráž ako súčasť domu.

Stav

štúdia, projekt

Autor

Martin Medlen

Miesto

Modra, Harmónia

Úžitková plocha

242 m²

Zastavaná plocha

214 m²

Charakter

Okrem základných požiadaviek bolo cieľom dosiahnuť aj plne funkčný dom s dvoma izbami, izbou pre hosťa, spálňou a hobby miestnosťou pre spoločenské aktivity. Nakoniec sme všetko skĺbili do racionálnej prevádzkovej schémy.

Mierka

Mierka domu je zámerne väčšia, ako je štandard. Veľkorysé spoločné a súkromné miestnosti a atrium tvoria zázemie pre najrôznejšie aktivity.

Terén

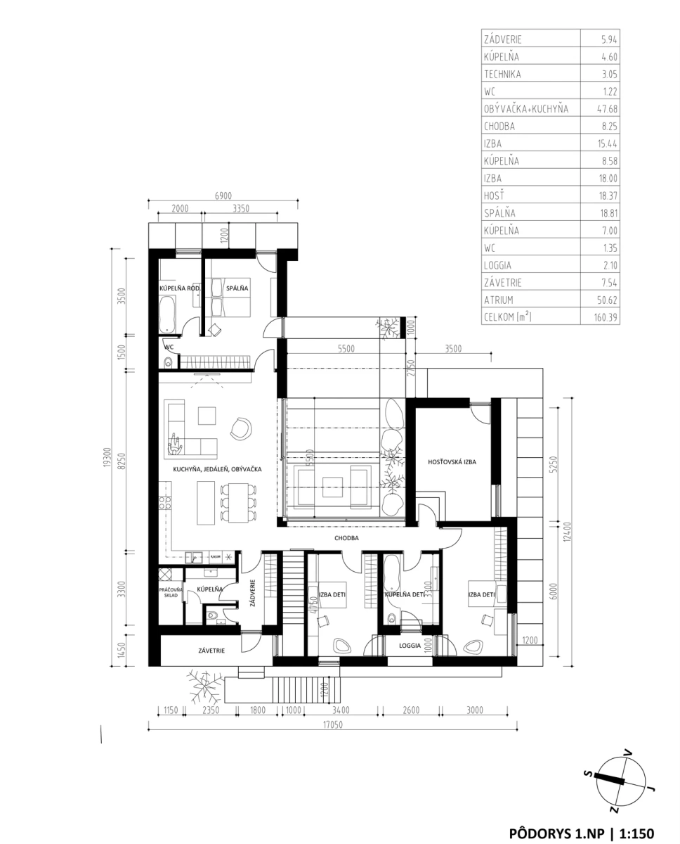
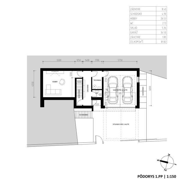
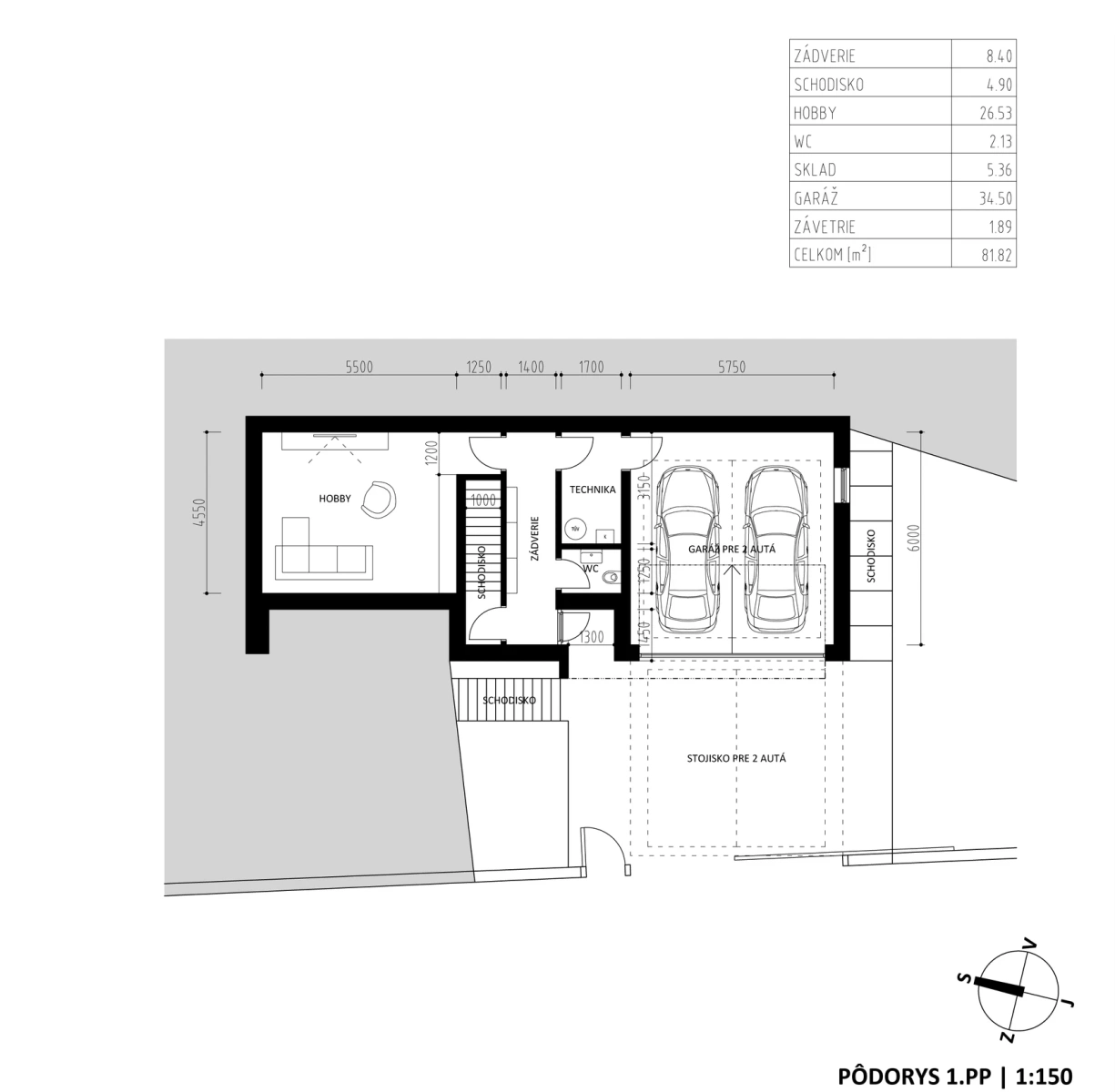
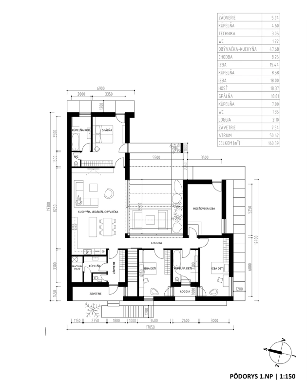
Pôvodný terén na pozemku stúpa od ulice smerom do záhrady. Už od začiatku vývoja štúdie sa počítalo s dvojpodlažnou schémou domu ako optimálnym riešením. Suterén má jedno nadzemné nárožie orientované do ulice, kde je umiestnený jeden zo vstupov do domu a vjazd do garáže priamo. Ostatné steny sú pod zemou. Prízemie nad suterénom je bezbariérový a prevádzkovo ucelený obytný priestor s atriom, ktorý nadväzuje na pôvodný terén zo záhrady. Výškové úrovne okolo domu spájajú schodiská a zatrávnené svahy.

Dispozíca a atrium

Obytná časť domu sa nachádza na prízemí s atriom a nebytová časť s príslušenstvom a dvojgarážou je v suteréne. Atrium domu je stredobodom celého diania. V letnej sezóne bude určite tvoriť neodmysliteľnú súčasť aktivít a v zime svojou kamennou stenou a možnosťou na umiestnenie živých dekorácií by sa mohlo stať drobnou galériou pre zákazníkov a návštevníkov domu. Kamenné stena hosťovskej izby pritom vôbec nebude brániť zimnému slnku presvietiť cez atrium interiér spoločnej časti domu.

Konštrukcia

Steny - v suteréne betónové debniace tvarovky 30cm s 15cm nenasiakavým polystyrenom a na prízemí pórobetónové tvarovky 30cm s 15cm expandovaným polystyrenom

Podklad a základy - betónová doska, zateplenie podlahovým polystyrénom 15cm, pásové základy z betónu

Stropy a strecha - drevený krov a nosná strecha, sadrokartónové stropy, krytina z falcového plechu

Detaily

Pozornosť dom upriamuje aj na svoje detaily:

. ochranné lamely v atriu zabezpečujú možnosť úplného prepojenia s interiérom spoločenskej časti, alebo izoláciu, všetko podľa nálady a chuti zákazníkov

. ochrannými lamelami od ulice je možné zabrániť nízkemu západnému slnku prehrievať dom v letnom období a čiastočne sa izolovať proti hluku z rušnej ulice

. presahy strechy majú neštandartný a subtílny konštrukčný detail

. betónové prístrešky nad vjazdom do garáže a v atriu čiastočne chránia exponované vstupy do domu a architektonicky podčiarkujú dôležité funkčné časti budovy

Materiály

Dom sa vyznačuje materiálmi rustikálneho pôvodu: svetlá sivohnedá omietka s jemnou štruktúrou, priznaný betón (alebo dekoračná omietka s imitáciou), kameň a drevo. Jediným moderným materiálom je antracitový plech na streche a vjazde do garáže, ktorý svojim kovovým leskom dodáva moderný vzhľad. 

Pozemok
Rodinný dom – vizualizácia Rodinný dom – vizualizácia Rodinný dom – vizualizácia Rodinný dom – vizualizácia Interiér – vizualizácia Interiér – vizualizácia Rodinný dom – pôdorys 1.PP Rodinný dom – pôdorys 1.NP Rodinný dom – rezy

Zaujal Vás tento projekt?

V prípade záujmu o nezáväznú konzultáciu alebo cenovú ponuku za naše služby nás kontaktujte.

Opýtať sa teraz >

Podobné projekty

Všetky projekty >