Dom na kopci
Novostavba jednopodlažného domu na vrchole svahovitého pozemku, ktorý má slúžiť štvorčlennej rodine
Objednané služby
štúdia
Autor
Martin Medlen
Miesto
Modra
Zámer
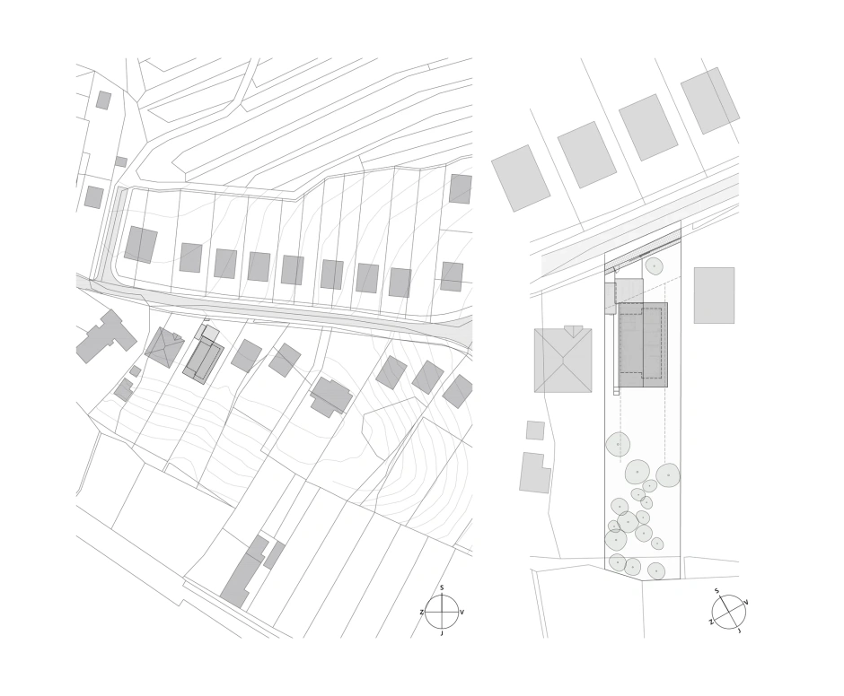
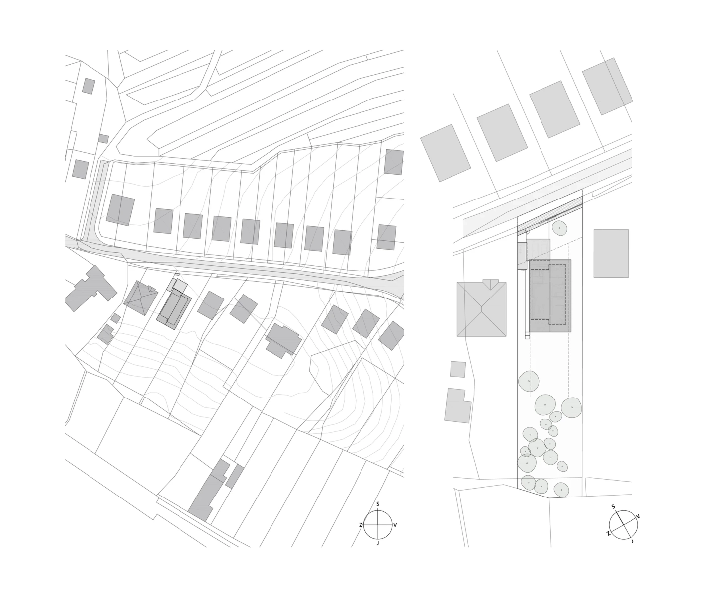
Zámerom štúdie je novostavba jednopodlažného domu na vrchole svahovitého pozemku, ktorý má slúžiť štvorčlennej rodine. Okrem domu bude na pozemku riešené prekryté parkovanie pre dve osobné vozidlá a dielňa so skladom a odstavnými plochami pre bicykle, motorku.
Návrh
Rodinný dom je navrhovaný s prihliadnutím na racionálne a efektívne narábanie s plošnými a objemovými mierami, efektivitu prevádzky a racionálnosť architektonického stvárnenia. Osadenie na pozemku rešpektuje požiadavky podľa urbanistickej štúdie.
Spevnené plochy
Spevnené plochy na pozemku sú riešené minimálne pre potreby, príjazdu vozidiel a parkovania, vytvorenia závetria a obslužnej komunikácie zo západnej strany domu, krytej obytná terasy z juhu a komunikácie z východnej a severnej strany, ktorá má charakter verandy prístupnej zo súkromnej časti domu.
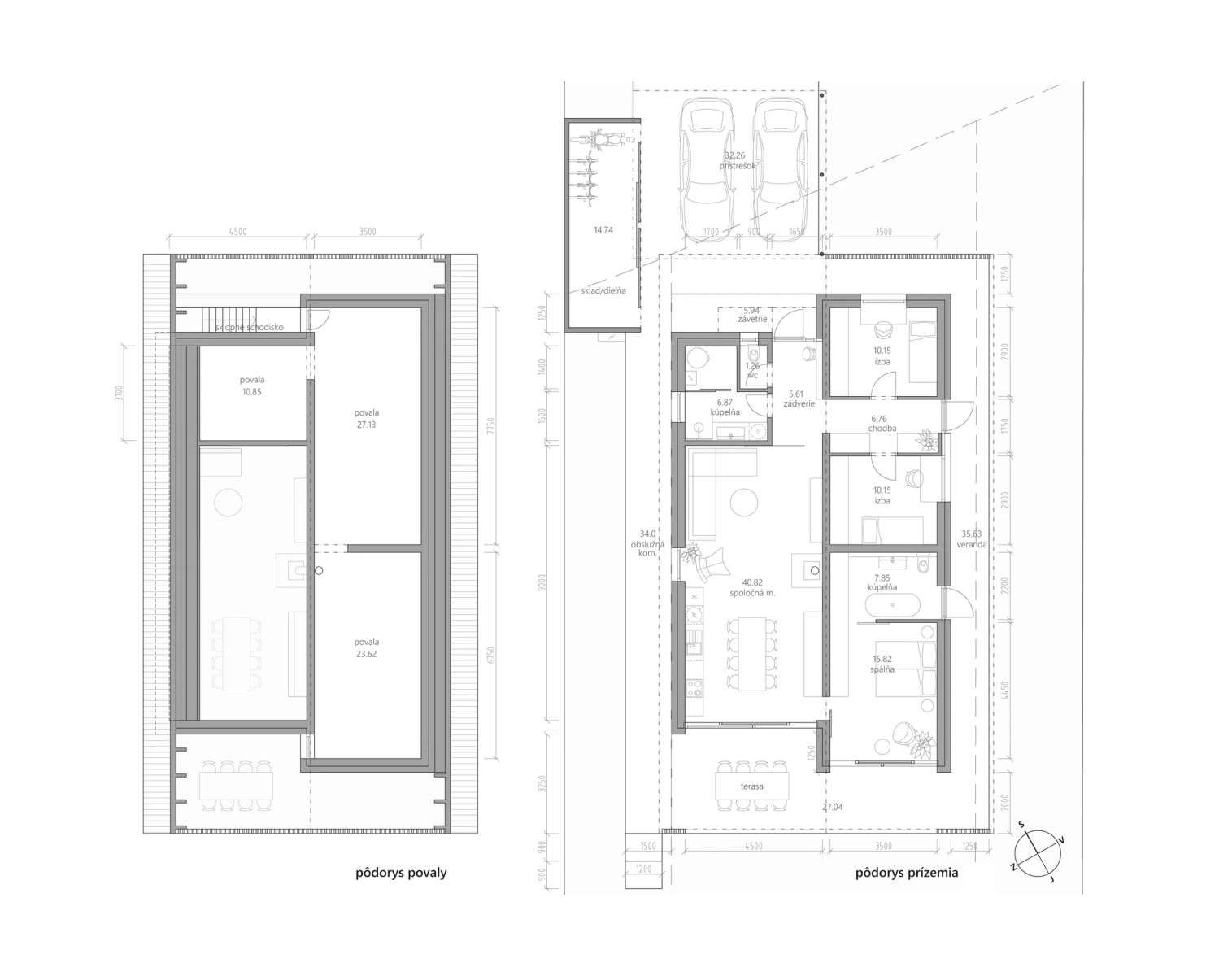
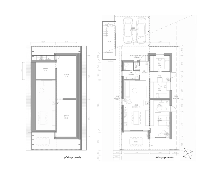
Dispozícia
Dispozičné riešenie delí stavbu pozdĺžne na dve časti: spoločná časť s hygienou a technickým zázemím a súkromná časť s tromi obytnými izbami a ich príslušenstvom vrátane kúpeľne spálne. Z juhu je dispozícia ukončená prekrytou terasou, ktorá je prístupná veľkorysými presklenými stenami zo spoločnej miestnosti a spálne. Presklené steny vizuálne spájajú terasu s interiérovými miestnosťami do jedného celku. V centre spoločnej miestnosti je piecka/kachle, ktoré sú zarovnané na os so západným oknom miestnosti.
Dispozícia, konštrukcia a architektúra domu tvoria ucelený a jasne čitateľný celok.
Stavebno-architektonický princíp
Dom je osadený na podkladovej doske, zvislé konštrukcie sú murované pozdĺž spoločnej a súkromnej časti domu. Súkromná časť má jednoduchý drevený strop a povalu na skladovanie, spoločná časť je otvorená po strechu. Strecha je sedlová, drevená, krov pozostáva len z pomúrnic a krokiev. Niektoré pomúrnce sú oceľové. Presahy strechy sú prispôsobené funkci priľahlých plôch. Východná obytná veranda je riešená s väčším presahom žľabu a západná oslužná komunikácia s menším. Severné závetrie a južná terasa sú prekryté štítovými časťami strechy veľkoryso. Sklon strechy je 35°. Štíty domu tvoria perforované stienky z drevených lát, ktoré sú jeho konceptuálnym architektonickým a svetlotechnickým princípom. V lete chránia interiér pred prehrievaním a v zime nebránia plnohodnotmému preslneniu. Fasády domu sú biele, hladké, krytina vrátane oceľových prvkov a rámov okien je sivá, exteriérové priľahlé podlahy sú navrhované z brúseného betónu. Zápané okná vrátane terasy sú chránené pred prehrievaním screenovými roletami na lankách. Zo severnej strany je umiestnený oceľovo-drevený prístrešok pre dve vozidlá a murovaná dielňa so skladom, extenzívnou vegetačnou strechou a oceľovo-drevenými posuvnými dverami.
Záver
Základnými črtami rodinného domu vrátane úprav okolia sú: ničím nerušený južný výhľad, prepojenie exteriéru s interiérom pomocou zasklených stien, prirodzené tienenie interiéru drevenou štítovou stienkou, prechod okolo domu „suchou nohou“, dostatok denného osvetlenia, jednoduchosť výstavby a komfort bez zbytočne vynaložených prostriedkov.
Ideové schémy
Schéma preslnenia
Vizualizácie
Plány
rodinný dom
dom na kopci
úsporný dom
racionálny dom
Modra
murovaný dom
krov
priznaný krov
lamely
hliníková krytina
presklená stena
sklo
drevo
tehla
vzduch voda
podlahové vykurovanie
rekuperácia
A0
vykurovanie slnkom
výhľad
Zaujal Vás tento projekt?
V prípade záujmu o nezáväznú konzultáciu alebo cenovú ponuku za naše služby nás kontaktujte.