Tvorivá dielňa v starej kotolni
Zámerom štúdie je prestaba bývalej kotolne v areáli rehabilitačného strediska v Modre.
Objednané služby
štúdia, projekt
Autor
Martin Medlen
Miesto
Modra
Zámer
Rehabilitačné stredisko zmodernizuje a sfunkční holopriestor kotolne, ktorý má slúžiť ako tvorivá dielňa vrámci denného stacionáru pre ľudí s mentálnym postihnutím.
Jestvujúci stav
V súčasnosti je budova nevyužívaná a chátra. Jej nosné konštrukcie sú zatiaľ v dobrej kondícii. Jej podlaha je oproti priľahlému terénu zapustená v zemi asi o 1,8m. Budova je výstižná prefabrikovaným rebrovým stropom.
Návrh
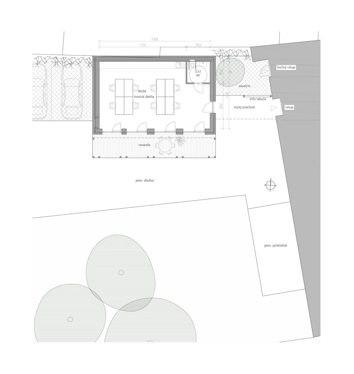
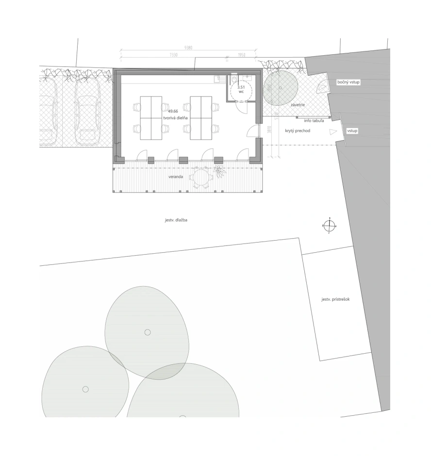
Návrh počíta so zasypaním priehlbne jestv. podlahy a s vytvorením novej úrovne priľahlej k terénu, kompletným zateplením konštrukcií, zväčšením okien až po úroveň podlahy a s vytvorením krytej verandy, ktorá v letnej sezóne zabráni prehrievaniu interiéru. Priestor je riešený ako jedna miestosť s veľkorysými presvetlovacími otvormi a druhá miestnosť s bezbariérovým wc. Exteriérová veranda ponúka možnosť tvorivých prác aj vonku, pri zachovaní čiastočnej autonómie /súkromia/ od priľahlých spevnených plôch, využívaných nielen návštveníkmi centra Claudianum.
Stavebno-architektonický princíp
Architektúra starej kotolne je výstižná rebrovým prefabrikovaným stropom a jednoduchým industriálnym výrazom. Výraz návrhu nebude protirečiť pôvodným vlastnostiam a citlivým spôsobom ich priblíži novej funkcii, ktorá nemá industriálny ani technologický charakter. Budova tak má tak okrem modernizácie ľudským spôsobom pripomínať jej minulosť.
Foto jestvujúceho stavu a návrh
Vizualizácie
Plány
rekonštrukcia
adaptácia
úsporná stavba
ateliér
tvorivá dielňa
Modra
murovaná stavba
betónový strop
drevená konštrukcia
sklo
drevo
kov
infračervené vykurovanie
rekuperácia
vykurovanie slnkom
zelená strecha
Zaujal Vás tento projekt?
V prípade záujmu o nezáväznú konzultáciu alebo cenovú ponuku za naše služby nás kontaktujte.