Dom v pamiatkovej zóne
Rodinný dom je navrhnutý na mieru mladej rodine s dvoma deťmi s možnosťou ubytovania hostí.
Stav
štúdia, projekt, realizácia
Autor
Martin Medlen
Miesto
Modra
Úžitková plocha
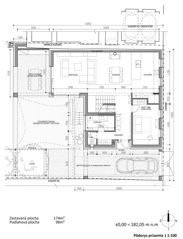
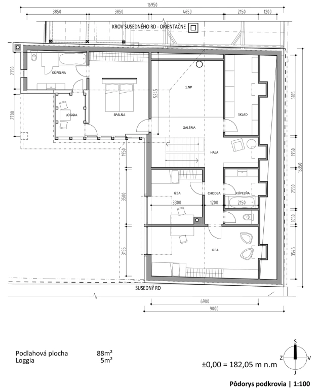
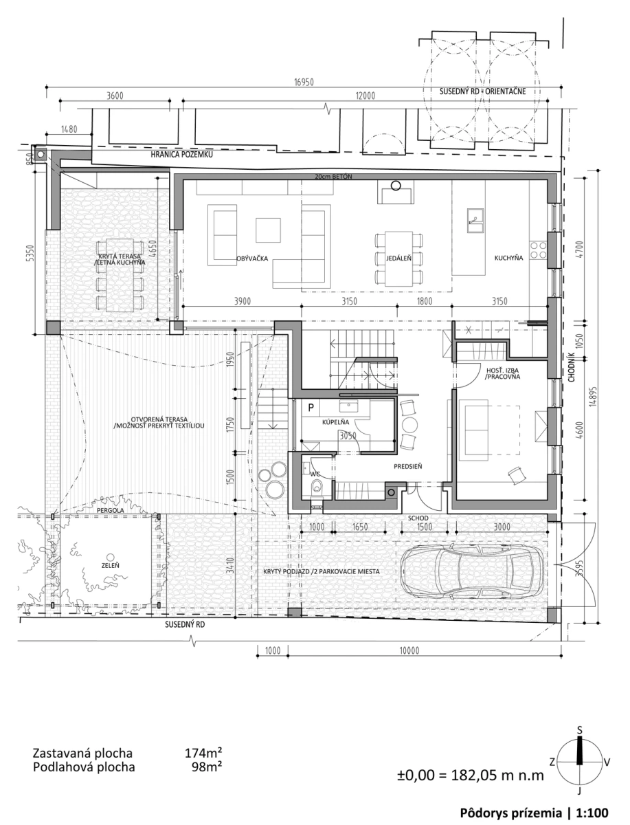
230,4 m²
Zastavaná plocha
189,4 m²
Charakter
Architektúra sa vyznačuje kontrastmi medzi uličnou časťou a dvorovou časťou stavby, medzi modernými a historizujúcimi tvaroslovnými prvkami a v materiáloch. Celkovo ide o vyvážený mix týchto kontrastov.
Konštrukcia
Steny - betónové základové pásy a keramické tvarovky 30cm, zateplenie minerálnou vlnou 15cm
Podklad - betónová dvojitá doska, zateplenie podlahovým polystyrénom 12cm
Stropy a strecha - železobetónové stropy, drevený krov, keramická krytina
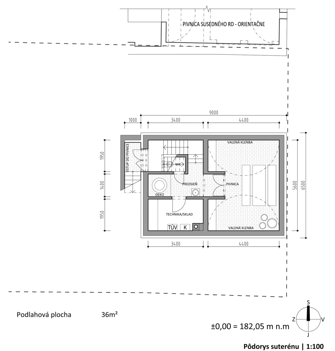
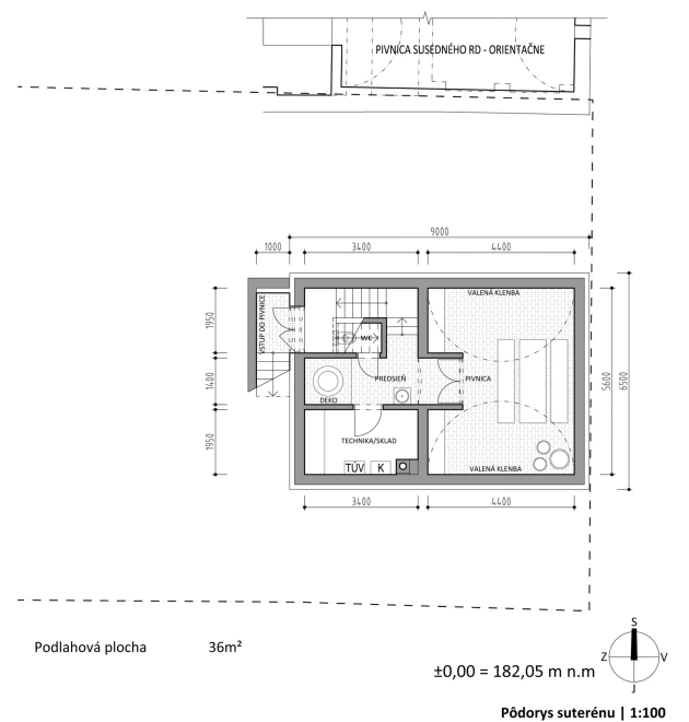
Klenba v suteréne - tradičná valená klenba z plnej pálenej tehly
Pôvodný stav a vizualizácie
Pohľady a pôdorysy
rodinný dom
úsporný dom
racionálny dom
radová zástavba
Modra
pamiatková zóna
murovaný dom
krov
priznaný krov
ťažká krytina
presklená stena
sklo
drevo
kameň
kov
meď
podlahové vykurovanie
rekuperácia
A0
vykurovanie slnkom
meď
Zaujal Vás tento projekt?
V prípade záujmu o nezáväznú konzultáciu alebo cenovú ponuku za naše služby nás kontaktujte.