Rodinny_dom_Novosady_1.jpg

Rodinný dom Novosady

Nízkoenergetický dom je umiestnený vo svahu v peknej obytnej zóne medzi lesom a vinohradmi.

Stav

projekt, realizuje sa

Autor

Martin Medlen

Miesto

Dubová

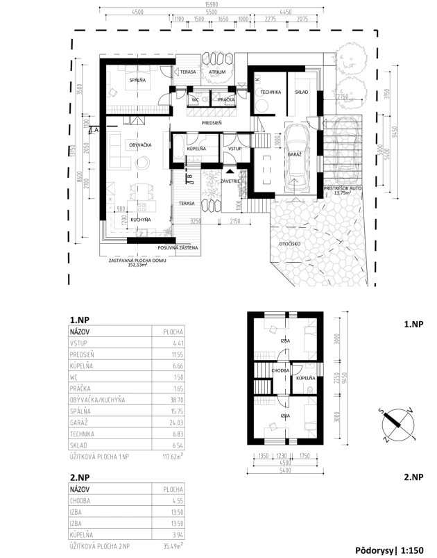
Úžitková plocha

153 m²

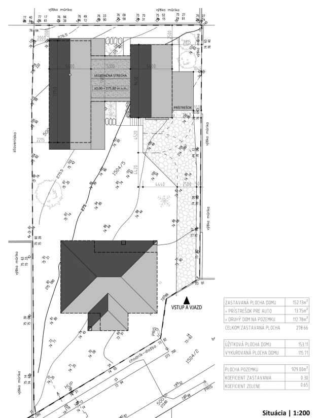
Zastavaná plocha

152 m²

Vykurovaná plocha

116 m²

Charakter

Na pozemku nebude rodinný dom stáť sám, ale spolu s ďalším domom. Ten druhý bude mať osadenie štandardné, v náväznosti na príjazdovú cestu. A tento bude umiestnený atypicky, v zadnej časti záhrady. Hlavnou ideou domu bolo proporciami a mierkou nekonkurovať okolitej zástavbe, citlivo využiť prirodzený terén a spolu s ďalším domom na pozemku dodržať limity pre zastavanie. Ďalej ako vždy, navrhnúť dom šitý na mieru mladému a sympatickému páru.

Mierka

Mierka domu je úmyselne podriadená okolitej zástavbe rozdelením kompozície do dvoch podobných častí. Najviac ich vystihuje tradičná strecha a rovnaká šírka interiérového priestoru 4,5 metrov. Oproti ostatným stavbám v okolí je táto šírka málo na to, aby im dom konkuroval. Hlavným úmyslom bolo ostať v pozadí, či skôr iba mierne vykuknúť.

Funkcie a terén

Pre citlivé využitie svahu na pozemku bolo snahou rozčleniť dom na výškové úrovne. Tak vznikli tri podlažia domu, výškovo osadené po 1,25 metra. Prvé dve z nich sú prístupné bezbariérovo priamo z terénu. Prvé podlažie je určené pre skladovanie, techniku a garáž, druhé tvorí spoločenská časť domu so spálňou a príslušenstvom a tretie slúži deťom alebo hosťom.

Orientácie

Dom má spolu 4 obytné miestnosti. Každá z nich má výhľad úplne odlišný od tých ostatných. Spoločenská časť je orientovaná tak, aby bolo zabezpečené súkromie obyvateľov oboch domov na pozemku a dostatočné preslnenie, to je smerom na bok pozemku, juhovýchodná strana. Detské izby sú orientované opačnými smermi, na juhozápad a severovýchod. Spálňa zachytáva ranné lúče slnka vďaka polotvorenému atriu, ktoré ju opticky aj funkčne rozširuje von do exteriéru.

Zelená strecha

Pre vylepšenie estetického aj ekologického potenciálu domu bola nad strednou časťou navrhnutá zelená (vegetačná) strecha. Jej výhody sú okrem zdravého a ekologického look-u aj ochrana strešných vrstiev proti UV žiareniu, prehrievaniu, zachytávanie prachu a znečistenia, ale hlavne zadržiavanie minimálne 50% zrážkovej vody padajúcej na strechu. Tým sa zvyšuje životnosť strechy a samotný komfort v interiéri. Údržba zelenej strechy je pritom minimálna.

Konštrukcia

Steny - pórobetónové tvarovky 25cm a zateplenie expandovaným polystyrénom 20 cm

Podklad - železobetónová doska, zateplenie podlahovým polystyrénom 15 cm

Stropy a strecha - drevený krov a nosná strecha, sadrokartónové stropy, betónová krytina

Vykurovanie

Ako primárne vykurovanie bol na želanie zákazníkov navrhnutý systém elektrických infrafólií zabudovaných v podlahe, pre ktoré sme spracovali výpočet tepelných strát (výkonov) pre jednotlivé miestnosti. Celková tepelná strata domu je 6,212 kW.

Vetranie

Systém rekuperácie vzduchu so spätným získavaním tepla

Energetické hodnotenie

Merná potreba tepla na vykurovanie - 16,1 kWh/m² ročne (takmer pasívny dom)

Potreba tepla na prípravu teplej vody - 16,5 kWh/m² ročne

Vizualizácie

Rodinný dom Rodinný dom Rodinný dom – interiér Rodinný dom – interiér

 Pôdorysy

Rodinný dom – pôdorys Rodinný dom – pôdorys

 Rezy

Rodinný dom – rezy

Svetelné pomery počas roka

Rodinný dom – svetelné pomery Rodinný dom – svetelné pomery Rodinný dom – svetelné pomery

Zaujal Vás tento projekt?

V prípade záujmu o nezáväznú konzultáciu alebo cenovú ponuku za naše služby nás kontaktujte.

Opýtať sa teraz >

Podobné projekty

Všetky projekty >