M-MAS predajný sklad
Obchodné priestory – stavba haly, priľahlých exteriérových pavlačí a predajného dvora
Objednané služby
štúdia, projekt pre územné rozhodnutie, projekt pre stavebné povolenie, tendrová dokumentácia, realizačný projekt, štúdia interiéru
Spoluautori
Matúš Bišťan, Martin Medlen /architekti/, Peter Pasečný /krajinná architektúra/
Spolupráca
Daniel Růžička, Róbert Sekula, Jakub Števanka
Miesto
Holíč
Charakter
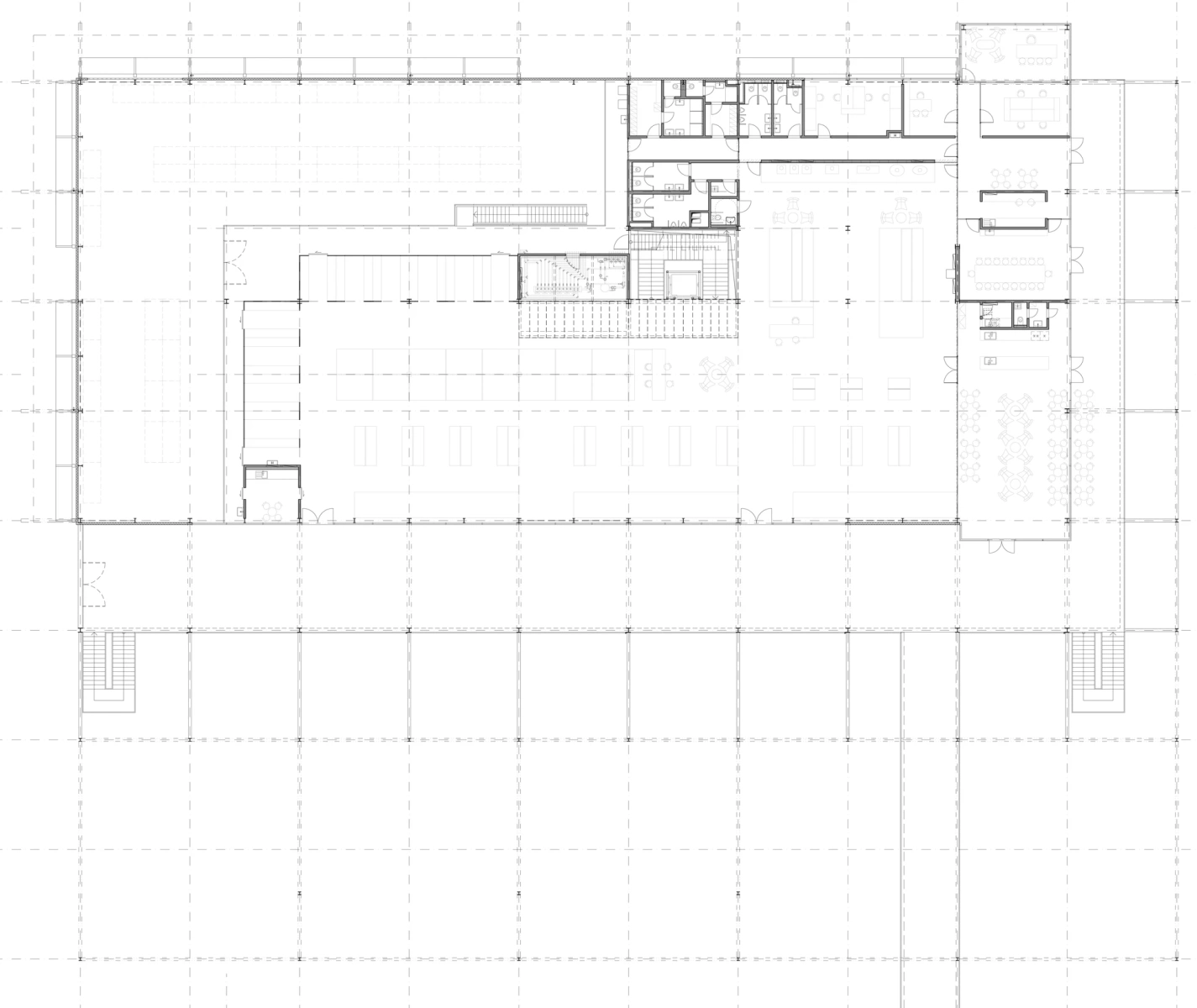
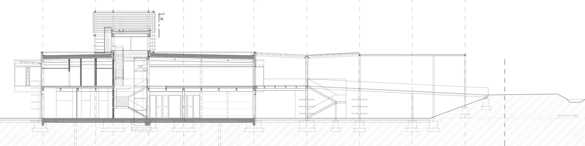
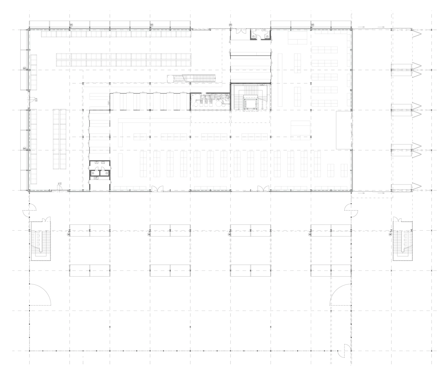
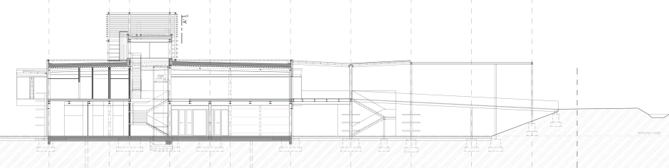
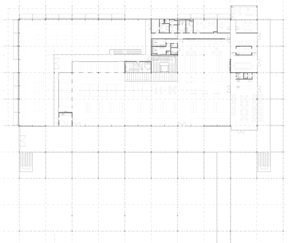
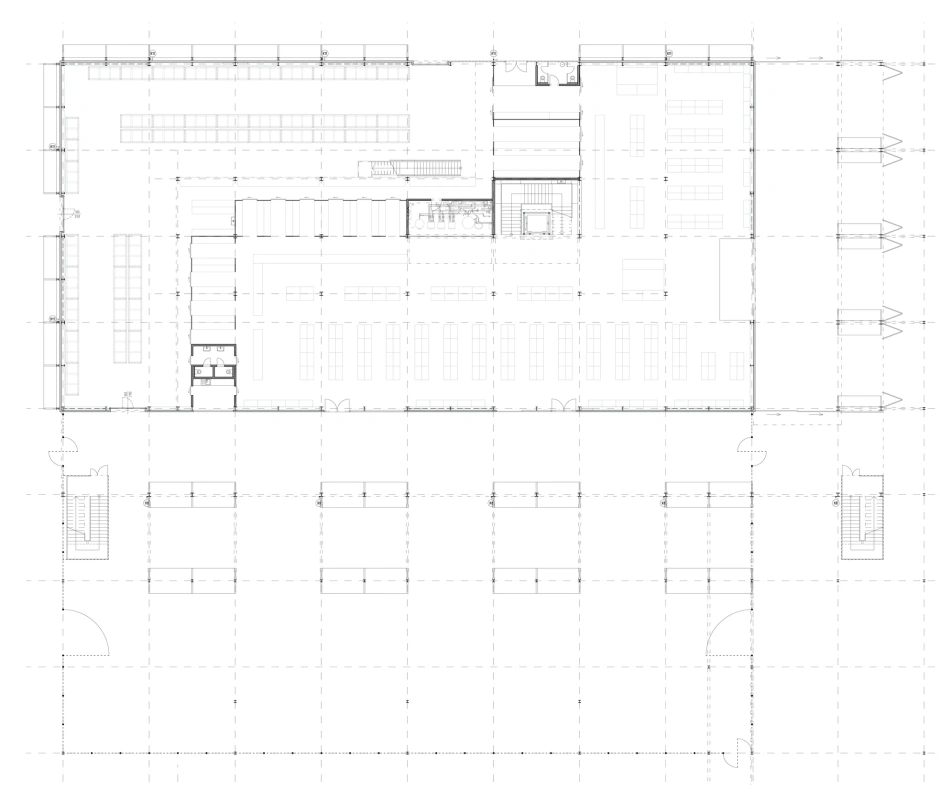
Architektúra objektu vychádza zo základného 15m modulu, ktorý definuje samotnú stavbu haly aj priľahlých exteriérových pavlačí a predajného dvora. Keďže spoločnosť M-MAS potrebuje pomerne veľa tovaru vystavovať a skladovať aj v exteriéri – tento zámer bol určujúci aj pri navrhovaní stavby. Okolo samotnej haly (2×4 moduly) je navrhnutý v tom istom modulovom rastri fasádny systém na vystavovanie a skladovanie tovaru smerom k ulici Hollého a pavlač, ktorej súčasťou na poschodí je objem kaviarne a administratívnej časti smerom ku Kátovskej ulici. Tieto pobytové priestory sú otočené na juhovýchod – budú teda poskytovať príjemné prostredie pre návštevníka. Pavlač smerom k mlynskému náhonu a terénnej navážke tvorí zároveň konštrukciu prestrešenia predajného dvora. Koncepčne teda objekt haly obalujú dve L-formy. (Princíp do seba zakliesnených L foriem sa prejavuje aj vo vnútornej dispozícii haly.) Výstavno skladovací fasádny regálový systém a kryté predajno-pobytové pavlače. Práve tieto funkčné elementy, ktoré sú pridané k objemu haly, dávajú stavbe výraz a technicistický charakter, ktorý vytvára priestorovo bohaté situácie. Prispieva k tomu aj fakt, že v rámci štúdie bol kladený dôraz na celkové riešenie areálu (nielen samotnej stavby) vrátane koncepcie zelene, zadržiavania dažďovej vody, spevnených plôch. Krajinársky dôležitým prvkom, ktorý do istej miery definuje charakter exteriérových plôch je terénna navážka, na ktorej je vodný kanál – mlynský náhon.
Navrhovaný objekt je koncipovaný ako oceľová montovaná hala s exteriérovou pavlačou. Dopravné napojenie areálu je od ulice Hollého.
Celkové pôdorysné rozmery zvislých obvodových konštrukcií sú 68 x 34 metrov. Súčasťou zastavanej plochy sú aj presahy striech v exteriéri. Celkové rozmery stavby vrátane presahov sú 79 x 49 metrov. Celková výška atiky stavby sa navrhuje na 9,5m a maximálna výška objektu /v časti svetlíka s krycou lamelovou stienkou pre technológie/ je 15,3 m.
Pozemok a budova sa funkčne člení na zóny pre zákazníkov, pracovníkov predaja a skladov a administratívnych pracovníkov.
Vizualizácie
Ideové schémy
Plány
predajný sklad
predajný dvor
exteriér
areál
sklad
predajňa
showroom
administratíva
kaviareň
Holíč
hala
oceľová konštrukcia
presklená fasáda
sendvičové steny
železobetónová doska
podlahové vykurovanie
tepelné čerpadlo
zem voda
rekuperácia
A0
Zaujal Vás tento projekt?
V prípade záujmu o nezáväznú konzultáciu alebo cenovú ponuku za naše služby nás kontaktujte.