Radovka
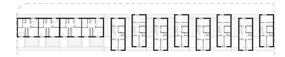
Navrhovaná radová zástavba bude tvoriť kompaktný urbanistický a architektonický blok šiestich dvojdomov s mierkou pre okrajovú oblasť obce.
Objednané služby
štúdia, projekt
Autor
Martin Medlen
Spoluautor
Martin Zagyi
Miesto
Dubová
Charakter
Proporcie a objem zástavby budú súčasným, ale citlivým spôsobom nadväzovať na charakter tradičnej urbanistickej štruktúry.
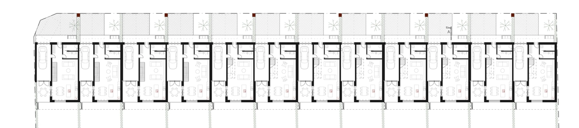
Každý rodinný dom pozostáva z dvoch bytových jednotiek so samostatnou predzáhradkou, vstupom a vjazdom do garáže a oplotenou záhradou, čím je vytvorené súkromie pre bytové jednotky v záhrade. Predzáhradka rodinného domu ostáva ako poloverejný priestor s parkovaním dvoch vozidiel pre každú bytovú jednotku, kobkou na odpad a závetrím pozdĺž celej šírky rodinného domu. Zo strany záhrady je v tesnom kontakte s každým bytom otvorená pobytová terasa.
Hlavnou myšlienkou zástavby bolo integrovať do existujúcej tradičnej urbanistickej zástavby opakovateľnosť jednoduchých, ekonomických a ľahko zhotoviteľných foriem novej modernej zástavby, bez straty autenticity obce.
Ideové schémy
Vizualizácie
Plány
Interiér
prízemie
poschodie
rodinný dom
radová zástavba
urbanizmus
úsporný dom
racionálny dom
murovaný dom
Dubová
krov
priznaný krov
lamely
hliníková krytina
atrium
sklo
drevo
vzduch voda
podlahové vykurovanie
rekuperácia
A0
vykurovanie slnkom
výhľad
Zaujal Vás tento projekt?
V prípade záujmu o nezáväznú konzultáciu alebo cenovú ponuku za naše služby nás kontaktujte.