interier-bytu-er-2_1.jpg

Interiér bytu E+R – 2. časť

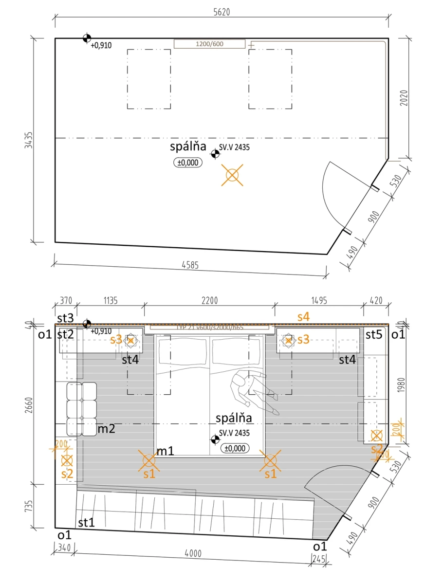
Úlohou pre nás bola zmena interiéru spálne, ktorá je umiestnená v byte realizovanom podľa nášho návrhu.

Stav

štúdia

Autor

Martin Medlen

Miesto

Modra

Zámer a charakter

Jednou zo zásadných požiadaviek bolo naplánovať v miestnosti čo najviac úložného priesoru bez pocitu stiesnenosti. Charakter spálne sa ponáša na ostatné miestnosti bytu, v duchu svetlýchštruktúr a farieb, ktoré sú skombinované s drevenou dyhou a existujúcou dubovou podlahou. Som rád, že pokračujeme na tomto interiéri ďalej.

Vizualizácie 

Jestvujúci stav a návrh

 


Zaujal Vás tento projekt?

V prípade záujmu o nezáväznú konzultáciu alebo cenovú ponuku za naše služby nás kontaktujte.

Opýtať sa teraz >

Podobné projekty

Všetky projekty >