Interier_viacucelovej_izby_1.jpg

Interiér viacúčelovej izby

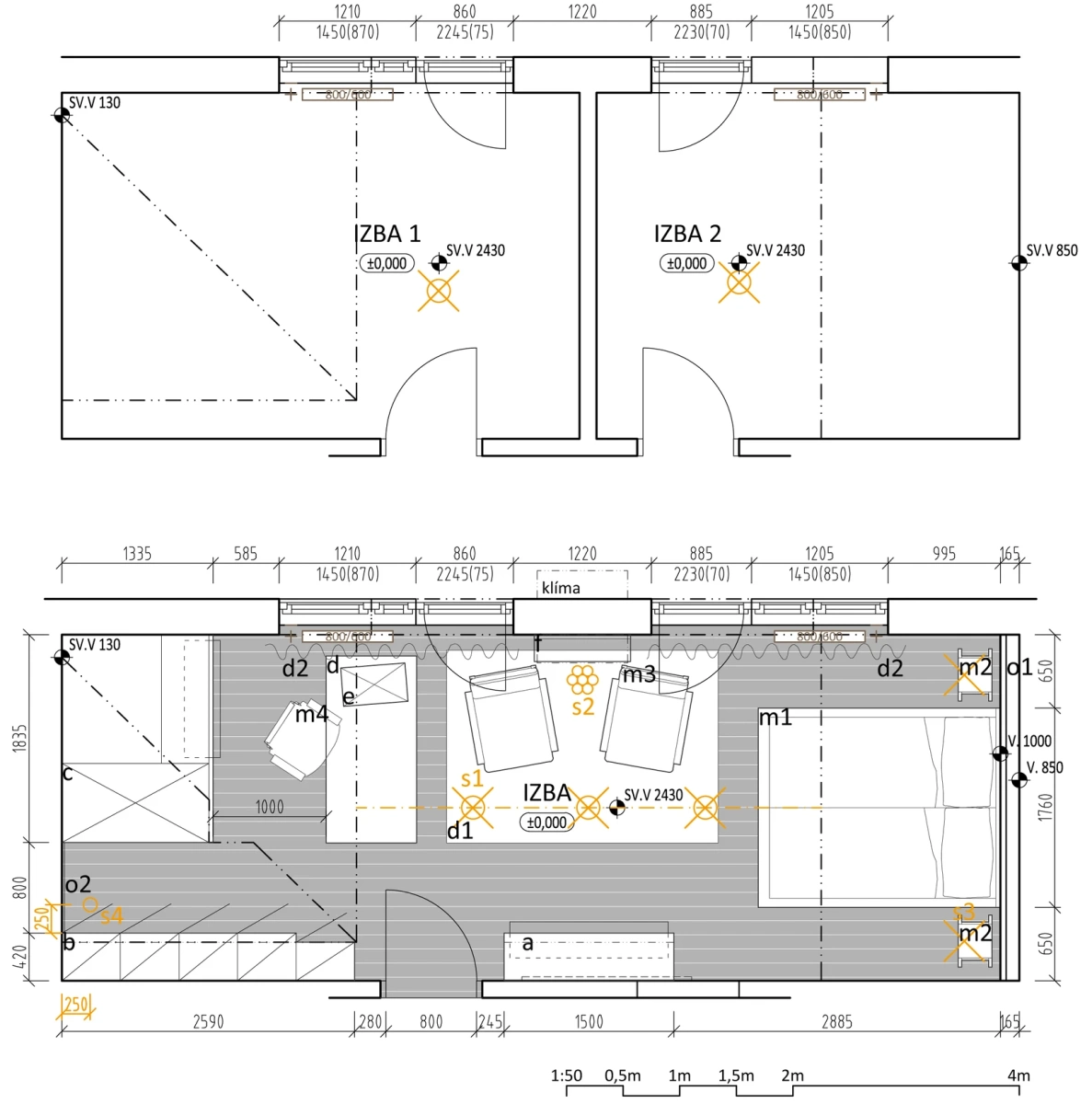
Zámerom nášho zákazníka bolo spojenie dvoch izieb do jednej viacúčelovej miestnosti. Miestnosť má slúžiť spánku, relaxu a práci súčasne.

Stav

štúdia, realizácia

Autor

Martin Medlen

Miesto

Šenkvice

Zámer a charakter

Napriek šikminám strechy, ktoré nám priestor čiastočne orezali a obmedzili jeho zariaditeľnosť, sme dospeli k riešeniu, ktoré vyzdvihuje najviac jeho potenciál. V protiľahlých častiach pod šikminami sa nachádza posteľ a šatník a v strede priestoru zóna pre aktívny relax a posedenie. Pre interiér sme zvolili hlavný materiál s prírodnou drevenou štruktúrou na podlahu, ktorý je skombinovaný s neutrálnymi farbami na zariaďovacích predmetoch. 

Pôvodný stav 

Vizualizácie

 

Pôdorysy - jestvujúci stav a návrh


Zaujal Vás tento projekt?

V prípade záujmu o nezáväznú konzultáciu alebo cenovú ponuku za naše služby nás kontaktujte.

Opýtať sa teraz >

Podobné projekty

Všetky projekty >