Interier_bytu_AR_1.jpg

Interiér bytu A+R

Zámerom zákazníkov, mladej rodiny s dvoma deťmi, bol interiér inšpirovaný pôvodne rustikou, naturálnymi, teplými, pokojnými materiálmi. 

Stav

štúdia, realizácia

Autor

Martin Medlen

Miesto

Modra

Charakter

Tento interiér bol navrhovaný do domu podľa nášho projektu. Počas našej spolupráce sme na tento zámer nadviazali, ale v duchu moderného, nadčasového interiéru s rurálnymi prvkami. K myšlienke prispievajú dva prístupy skombinované navzájom: jednoduché a minimalistické tvary tj. nadčasovosť a bohatá výbava materiálov tj. rustika. Kombináciou prístupov vznikol interiér, ktorý okrem splnenia požiadaviek zákazníkov charakterom zapadá aj do prostredia pamiatkovej zóny, kde sa nachádza.

Materiály

Na interiér boli použité napríklad tieto materiály: drevená podlaha upravená sivým olejom, travertínová dlažba a obklady v kúpelni a v zádverí, biele hladké steny, obklady z prírodného kameňa v galérii a patinovaného (skorodovaného) plechu na krbe, ďalej svietidlá, zábradlia na schodisku a doplnky s použitím tmavosivej ocele, stolárske výrobky z prírodného dubu s bielym a čiernym olejom, v kuchyni tiež striekané sivé a biele mdf dosky. Ako doplnky a mobiliár boli navrhnuté látkové zariaďovacie prvky tj. nadčasová jednoduchá sedačka a stoličky, závesy, menšie koberce. Moderným akcentom je presklené bezrámové zábradlie v galérii a tradičným akcentom sú veľkorysé posuvné dvere s bieleným dubom.

Dekorácie a doplnky sme nechali v réžii zorientovaných klientov, ktorým už viacnásobne ďakujem za prejavenú dôveru a želám pekné bývanie. 

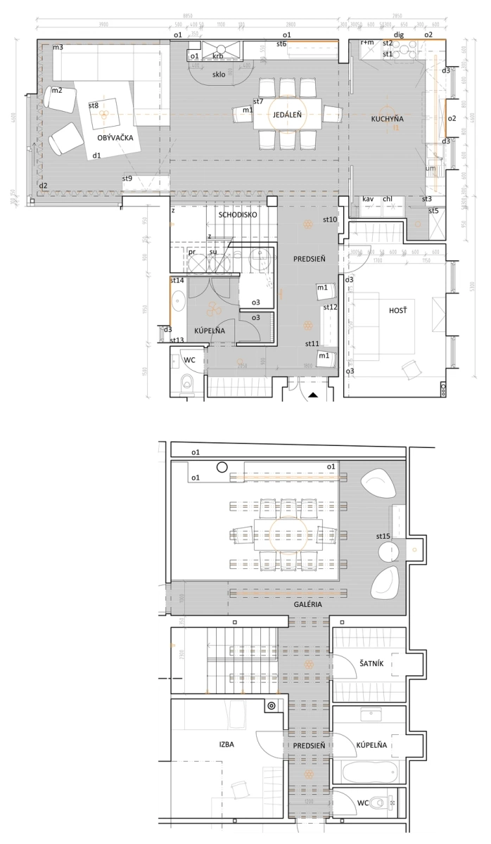
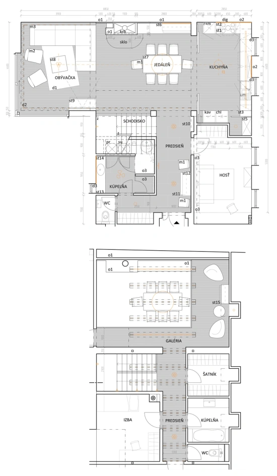
 Pôdorysy


Zaujal Vás tento projekt?

V prípade záujmu o nezáväznú konzultáciu alebo cenovú ponuku za naše služby nás kontaktujte.

Opýtať sa teraz >

Podobné projekty

Všetky projekty >