Vinotéka Modra 1
Štúdia interiéru predajne vína v Modre
Stav
štúdia
Autor
Martin Medlen
Miesto
Modra
Geometria
Vizualizácie
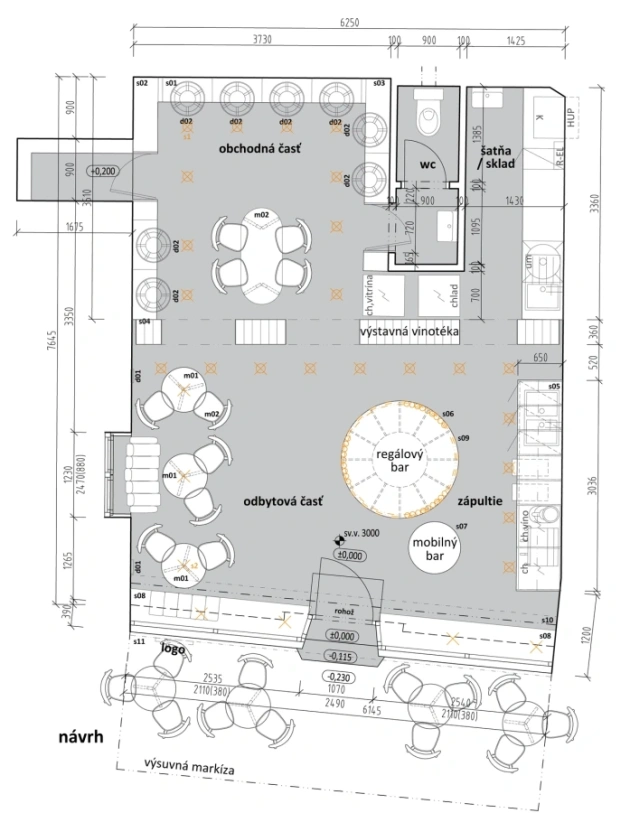
Pôdorys
gastro
vinotéka
obchod
minimalizmus
priestor
jednoduchosť
prírodné materiály
mikrocement
preglejka
kov
sivý
matný
pult
bar
keramika
Zaujal Vás tento projekt?
V prípade záujmu o nezáväznú konzultáciu alebo cenovú ponuku za naše služby nás kontaktujte.