Dom v lese
Dom skrytý v lese je zdravo sebaistý jedinec.
Objednané služby
štúdia, projekt, autorský dozor
Autor
Martin Medlen
Miesto
Modra
Charakter
Dom v lese je sebaistý jedinec, lebo sa nedožaduje pútať pozornosť vo vizuálnom boji so susednými stavbami, nepotrebuje záhradu, má predsa výhľad na les, nepotrebuje vysoký murovaný plot, keď je na okraji urbanizovanej krajiny, nemá ochranu pred silným slnkom, veď letné slnko stromy ťažko presvieti, nepotrebuje ani balkón, je totiž na kopci. Ušetril stavebníkovi náklady na vstupe aj na prevádzke. V neposlednom rade platí aj staré známe heslo: „V jednoduchosti je krása.“
Vizualizácie
Vizualizácie iného variantu
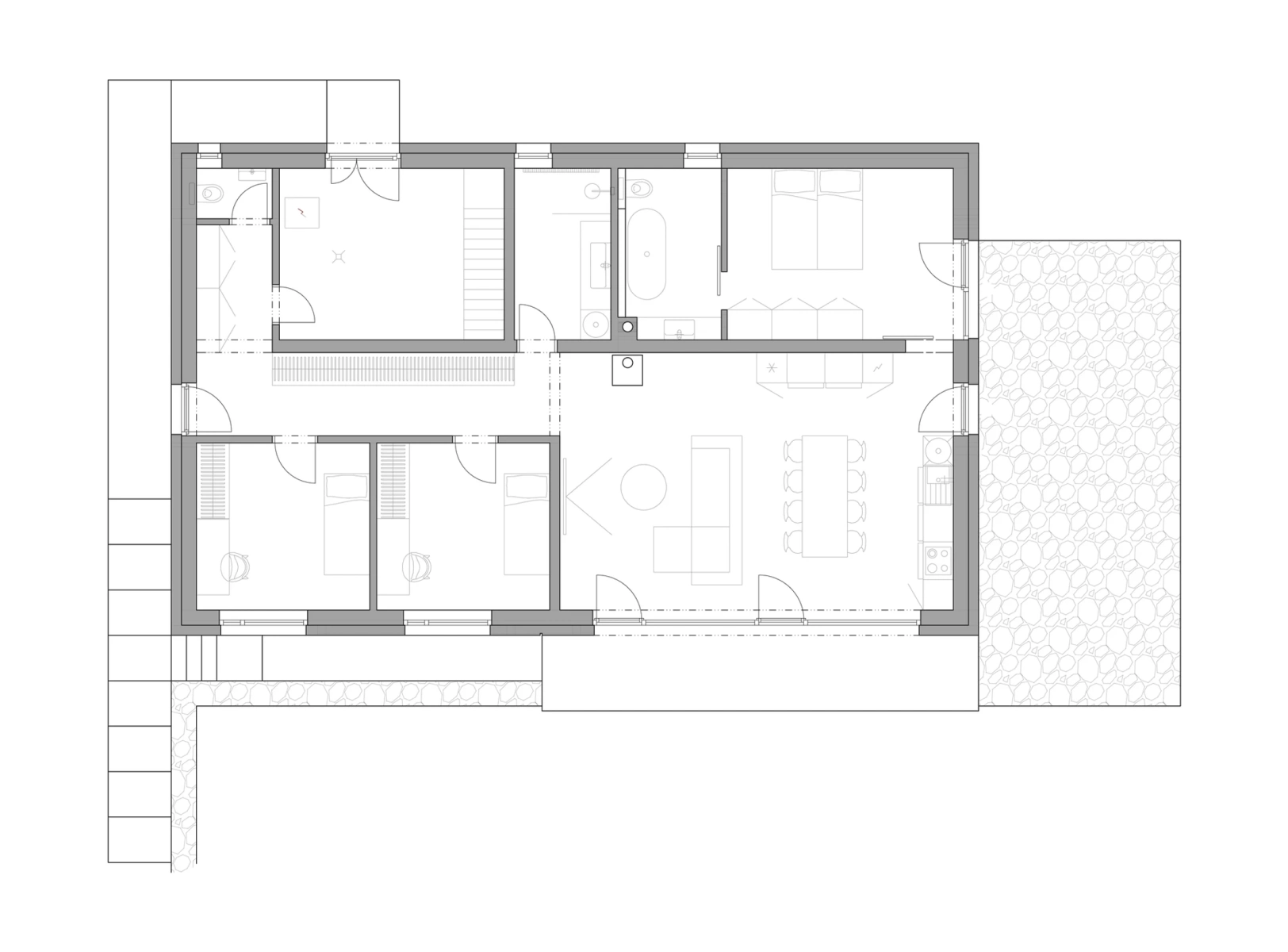
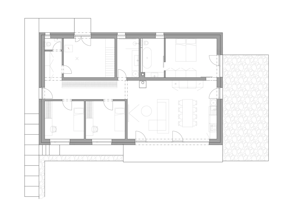
Plány
rodinný dom
dom v lese
úsporný dom
racionálny dom
Modra
murovaný dom
krov
priznaný krov
lamely
hliníková krytina
presklená stena
sklo
drevo
kameň
vzduch voda
podlahové vykurovanie
rekuperácia
A0
vykurovanie slnkom
výhľad
Zaujal Vás tento projekt?
V prípade záujmu o nezáväznú konzultáciu alebo cenovú ponuku za naše služby nás kontaktujte.