Rodinný dom Záhrady Devín 2
Jednopodlažný dom so suterénom umiestnený do svahu, maximálne využitý potenciál pozemku, racionálna dispozícia, ktorá má služiť ako bezbariérový byt pre dve osoby, s možnosťou využívania ďalších obytných a úžitkových priestorov v suteréne počas zveľaďovania mladej rodiny.
Objednané služby
štúdia, projekt, autorský dozor /v procese/
Spoluautori
Martin Medlen, Helena Vojtková
Miesto
Záhrady Devín
Úžitková plocha
229,05 m²
Zastavaná plocha
138,75 m²
Realizácia
Zámer
Po druhé a len o dva pozemky vedľa domu podľa nášho projetku ° Rodinný dom Záhrady Devín sme sa stretli s novým zadaním. Mohlo by sa na prvý pohľad podobať so zadaním prvého projektu, ale vôbec tomu tak nie je. Noví zákazníci a nové požiadavky predurčili úplne iný charakter zástavby na pozemku. Ich predstavou bol jednopodlažný dom so suterénom umiestnený do svahu, maximálne využitý potenciál pozemku, racionálna dispozícia, ktorá má služiť ako bezbariérový byt pre dve osoby, s možnosťou využívania ďalších obytných a úžitkových priestorov v suteréne počas zveľaďovania mladej rodiny.
Umiestnenie a charakter
Rodinný dom je umiestnený v developovanom území v Devíne, na svahovitom pozemku s juhozápadnou orientáciou. Prístup na pozemok z ulice je v hornej časti svahu. Pri hľadaní konepcie pre dom sme sa aj pri tomto projekte rozhodli pre jednoduchú prevádzku, kompaktný objem a nekomplikované odvodnenie priľahlého terénu. Výstižný prvok domu je výhliadková terasa podľa princípu tzv. Sokratovho domu a atika levitujúca nad objemom domu.
Sokratov dom
je typologicky jasne čitateľný architektonický princíp, ktorý využíva:
- slnko ako zdroj svetla a tepla, teda energie na vykurovanie: na rozdiel od energie z kotla si za slnečné lúče neplatíme.
- okná na juh ako vykurovacie plochy: pri prechode slnečného lúča cez sklenenú plochu sa časť energie svetla mení na teplo, týmto spôsobom je okno prirodzený radiátor bez obsluhy.
- prístrešok ako protislnečná clona: architektonický prvok, ktorý nás dokáže ochrániť pred slnkom bez manuálneho ovládania.
- Sokratov dom je múdry práve tým, že prirodzene vytvára vnútorný komfort podľa sezóny v roku
V zime sa pri prechode svetla cez južné okná prirodzene vykuruje vnútorný priestor, čo má podiel na úsporách za kúrenie. V lete má naopak vykurovanie cez okná nežiadúce účinky, pretože interiér sa prehrieva. Slnečné lúče zvierajú s horizontom v lete iný uhol ako v zime. Tento jav zohľadňuje správne navrhnutý prístrešok, ktorý zatieni južné okná len v lete.
Princíp najlepšie vystihujú obrázky
Prevádzka
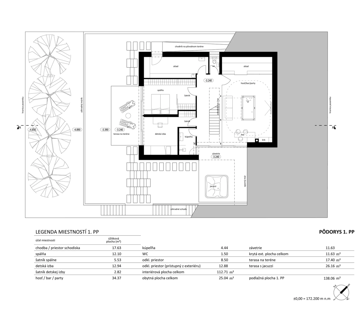
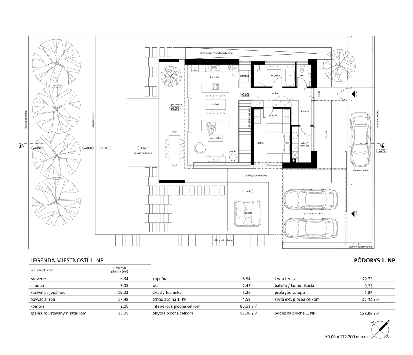
Dom je prevádzkovo členený na bezbariérové prízemie pre dve osoby so spoločnou časťou, spálňou, príslušenstvom a hygienou a suterén, kde sú dve izby, príslušenstvo, hygiena, sklad a hobby miestnosť. Nakoľko suterén je plný pobytových miestností, našou úlohou bolo osvetliť ho. Denné osvetlenie suterénu získavame cez poloatrium s vírivkou a vysokými oknami. Takto sú všetky jeho pobytové miestnosti prirodzene osvetlené a mohli by sme kľudne tvrdiť, že nejde o podzemné, ale plnohodnotné obytné podlažie.
Biliardový stôl
Pri návrhu hobby miestnosti sme rátali so špeciálnou požiadavkou: navrhnúť priestor pre osempalcový biliardový stôl. Stôl je umiestnený v strede miestnosti, pričom je zabezpečený odstup od stien podľa špecifických noriem.
Architektúra
Dom je výstižný jednoduchým tvaroslovím a formami, ktoré sledujú funkcie priestorov. Jednou z najdôležitejších foriem je spomínaný princíp Sokratovho domu ako funkčné tienenie veľkých južných okien. Súvisiacimi prvkami sú prestrešenie bočného balkóna a atika, ktoré sa akoby vznášajú nad hlavným objemom domu. Architektúra je obalená do prírodných povrchov: omietka, drevo, betón, a občerstvená exteriérovými doplnkami na terase: svietidlá, visuté dekorácie.
Vizualizácie
Pôdorysy
rodinný dom
úsporný dom
dom vo svahu
racionálny dom
Devín
betónový dom
drevený podhľad
presklená stena
sklo
drevo
kov
betón
vzduch voda
podlahové vykurovanie
rekuperácia
A0
vykurovanie slnkom
sokratov dom
gabion
Zaujal Vás tento projekt?
V prípade záujmu o nezáväznú konzultáciu alebo cenovú ponuku za naše služby nás kontaktujte.