Prestavba_interieru_v_Raci_01.jpg

Prestavba interiéru v Rači

Štúdiu sme navrhovali do rekonštrukcie domu podľa nášho projektu. Jej predmetom sú spoločenské priestory rodinného domu a spálňa.

Stav

štúdia, projekt

Autor

Martin Medlen, Lenka Halinárová

Miesto

Rača, Bratislava

Zámer a charakter

Príbeh začal na veľtrhu s nábytkom. Prechádzkou medzi stánkami sme so zákazníkmi vytipovali kombináciu tmavej olejovanej drevenej podlahy a horčicovej sedačky, ako hlavné obsadenie do interiéru. Betónom sme si vtedy už boli istí, nakoľko bol predurčený podľa exteriéru z našej dielne.

Kulisa

Kulisu interiéru tvoria biele steny, ktoré sú v dôležitých funkčných miestach podčiarknuté betónovým obkladom. Olejované drevo, nielen na podlahe hrá dominantnú úlohu. Jeho prírodná kresba je nositeľom atmosféry. Má aj iný potenciál. Olejovaný drevený povrch považujeme za jeden z najzdravších do interiéru.

Čisté tvaroslovie bez manierov

Pri práci sme sa držali myšlienky minimalizmu. Všetky materiály sú pravdivé, tvaroslovie je elegantné, postráda maniery, dekor, snaží sa vyhýbať krátkodobým trendom a prívlastkom označujúcich jeho štýlové radenie. Ak predsa, potom ho považujme za nadčasovú eleganciu.

Obývačka je reprezentačným centrom rodiny a nachádza sa v nej hneď viac akcentov: takmer 1000 litrové akvárium, krbová vložka, výstavná vitrína pre ružový porcelán, sedačková zostava a neprehliadnuteľné medené svietidlo visiace uprostred priestoru. Parket vôbec nebol veľký pre toľko sólistov a neľahkou úlohou bolo, aby sa vzájomne prvky nerušili. Preto verím že z vizuálov nie je cítiť stiesnenosť a rozruch.

Kuchyňu ovláda ostrov ako prípravný a raňajkový pult a vedľajšiu rolu má farebný akcent čiže šafránové skrinky na linke. Čierny žilový mramor dotvára kulisu. Radenie skriniek, spotrebičov a pracovných plôch tvorí dva navzájom nerušené funkčné uzly: príprava varených jedál a príprava nápojov s minútkami. Pri kuchyni sa v exteriéri nachádza vonkajší výčap.

Na poschodí sa nachádza ozajstná galéria, teda priestor polotvorený do podlažia nadol, oddelený zábradlím. 

Vstupná predsieň domu je miestom prvého kontaktu s akváriom, ale z opačnej strany. Po vkročení ihneď cítiť priezor do obývačky. 

Spálňa sa ponáša v duchu ostatných priestorov. Pôvodnú dubovú podlahu sme v nej ponechali. 

Vo všetkých miestnostiach sme sa snažili citlivo, esteticky a zaroveň funkčne zakomponovať dizajnové svietidlá.

 

Pôvodný stav 

 

Vizualizácie

 

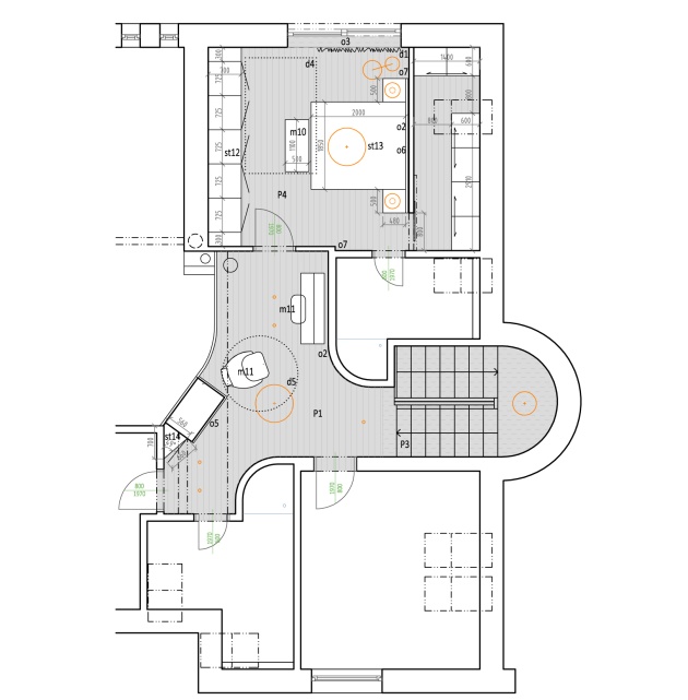
Pôdorys prízemia 

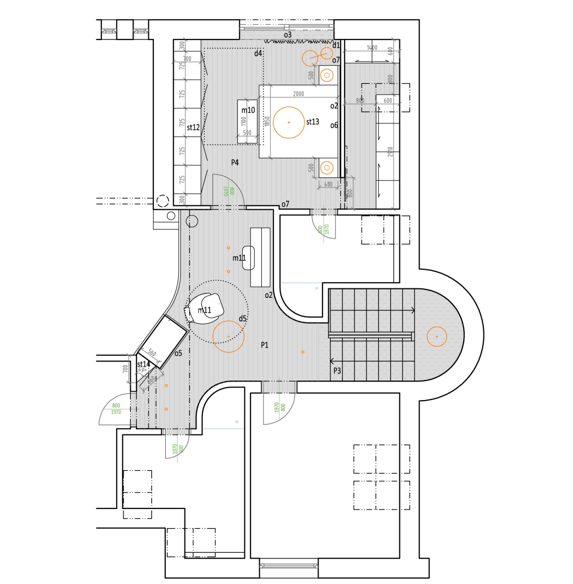
Pôdorys poschodia


Zaujal Vás tento projekt?

V prípade záujmu o nezáväznú konzultáciu alebo cenovú ponuku za naše služby nás kontaktujte.

Opýtať sa teraz >

Podobné projekty

Všetky projekty >