Interier_IM_01.jpg

Interiér I&M

Svetlé, dubové, ratanové, prútené a látkové kombinácie spolu tvoria charakter bytu.

Objednané služby

štúdia

Autor

Martin Medlen

Miesto

Modra

Charakter

Na významovo dôležitých miestach sú použité farebné a materiálové akcenty – lamely v kombinácii: čierny podklad a dubové drevo, čierny nábytok a doplnky. To všetko na bielom pozadí stien a v spolupráci s množstvom kvetín má pozitívne nabiť budúcich obyvateľov.

Vizualizácie 

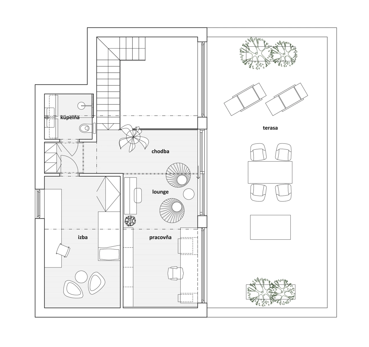
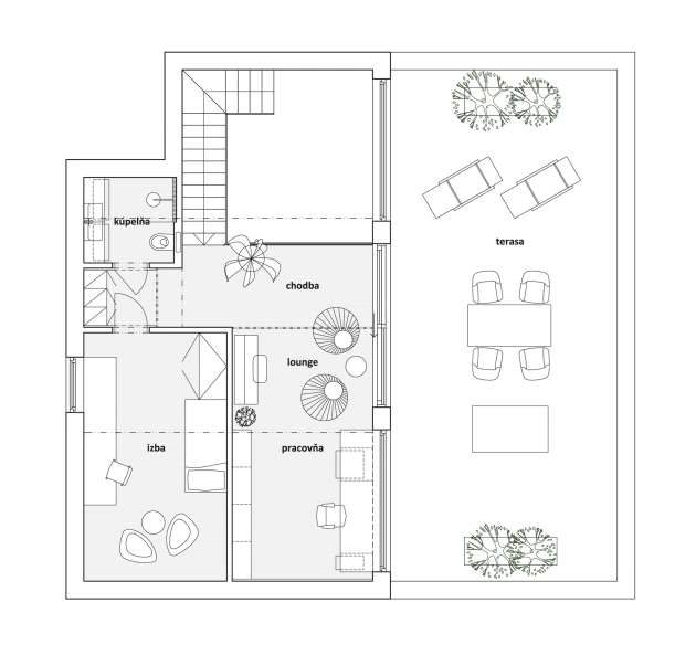
Pôdorysy

Vizualizácie iného variantu

v tomto variante tvorí prednú stranu baru odvážnejšid zakomponovanie zelene na spôsob zelenej steny, ktorá pozostáva zo živých rastlín a ľahké zavesené schodisko do konštrukcie strechy

Zaujal Vás tento projekt?

V prípade záujmu o nezáväznú konzultáciu alebo cenovú ponuku za naše služby nás kontaktujte.

Opýtať sa teraz >

Podobné projekty

Všetky projekty >