Rodinny_dom_na_okraji_obce_01.webp

Rodinný dom na okraji obce

Rodinný dom je navrhnutý ako objem pozostávajúci z veľkorysého prízemia s vegetačnou strechou a poschodia so sedlovou strechou. 

Objednané služby

štúdia, projekt

Autor

Martin Medlen

Spolupráca

Róbert Sekula

Miesto

Vinosady

Návrh

Vzhľadom na plošné nároky prízemia je poschodie ustúpené. Ustúpenie sedlového poschodia oproti veľkoplošnému prízemiu vytvára hlavný stavebno-architektonický princíp. Spevnené plochy na pozemku sú riešené pre príjazd vozidiel a parkovanie vonku resp. v garáži, ďalej pre súkromný oddych a vonkajšie aktivity na krytej terase medzi interiérom a záhradou.

Konštrukcia a architektúra

Konštrukcia a architektúra domu tvoria ucelený objem, kde nosný systém podkrovia priamo nadväzuje na múry prízemia cez monolitické konštrukcie vencov, stropu a čiastočne múrov poschodia. Dom je osadený na betónovej podkladovej doske a pásových základoch, zvislé konštrukcie sú murované podľa logiky dispozičného riešenia: na prízemí medzi časťami garáž a spoločná časť, na poschodí po obvode jeho objemu, súčasne nad múrmi prízemia. Vence, stropy a niektoré múry poschodia sú železobetónové. Fasády domu sú biele, hladké, krytina je sivá, exteriérové priľahlé podlahy sú navrhované z brúseného betónu alebo betónovej dlažby. Akcentom prízemia sú steny opláštené cementovláknitými doskami. Oplotenie je riešené z perforovaných oceľových profilov, otváravou kobkou na odpad a bránkou pre peších.

Zhrnutie

Základnými povahovými vlastnosťami rodinného domu vrátane úprav okolia sú: tvar domu, ktorý zabezpečuje súkromie spoločnej časti a reprezentatívnosť od ulice, ďalej architektonický princíp ustúpeného sedlového poschodia na rozľahlom prízemí s plochou strechou, orientácia okien tak, že okrem severozápadných nemajú žiadne iné nároky na exteriérové zatienenie, exteriérový prístrešok nad terasou ako súčasť stavby bez nutnosti prílepkov, výhľady z domu smerom do súkromnej záhrady, jednoduchosť, logika a racionalita priestorov s malou dávkou veľkorysosti.

Vizualizácie 

Plány

situácia
situácia
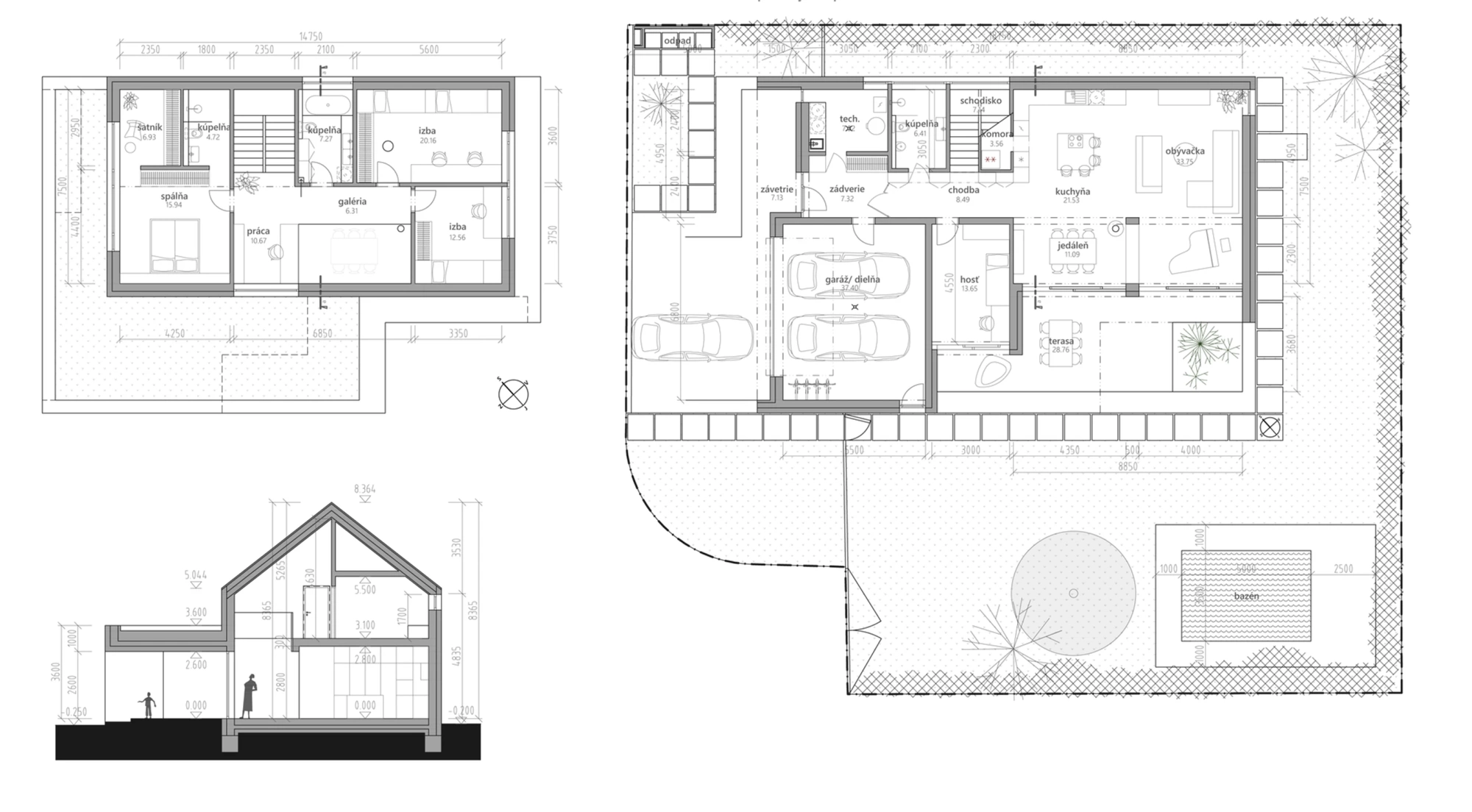
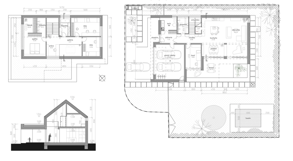
pôdorysy prízemia /vpravo/ a podkrovia /vľavo/ a rez
pôdorysy prízemia /vpravo/ a podkrovia /vľavo/ a rez

Zaujal Vás tento projekt?

V prípade záujmu o nezáväznú konzultáciu alebo cenovú ponuku za naše služby nás kontaktujte.

Opýtať sa teraz >

Podobné projekty

Všetky projekty >