Kaviaren_Siesticka_1.jpg

Kaviareň Siestička

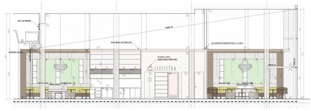
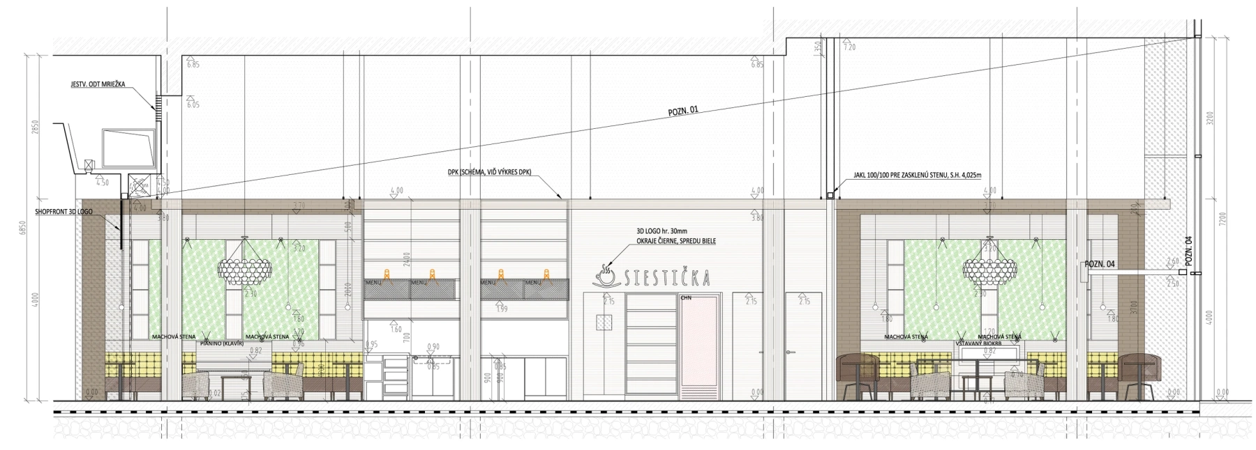
Koncept kaviarne „Siestička“ je založený na pohodovej atmosfére pri šálke kávy. Všetky komponenty, farby, materiály, svetlá sú zladené tak, aby bol výraz priestoru rodinný, teplý a útulný.

Stav

projekt, realizácia

Autor

Martin Medlen

Miesto

OC Centro Nitra

Charakter

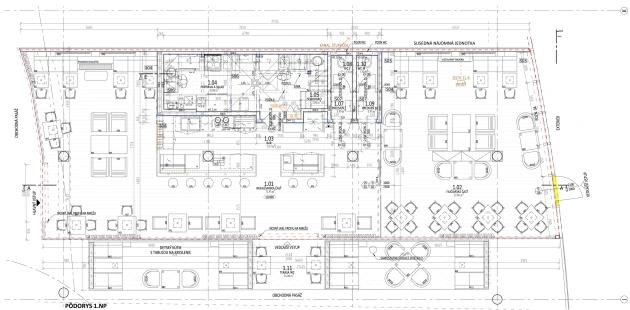
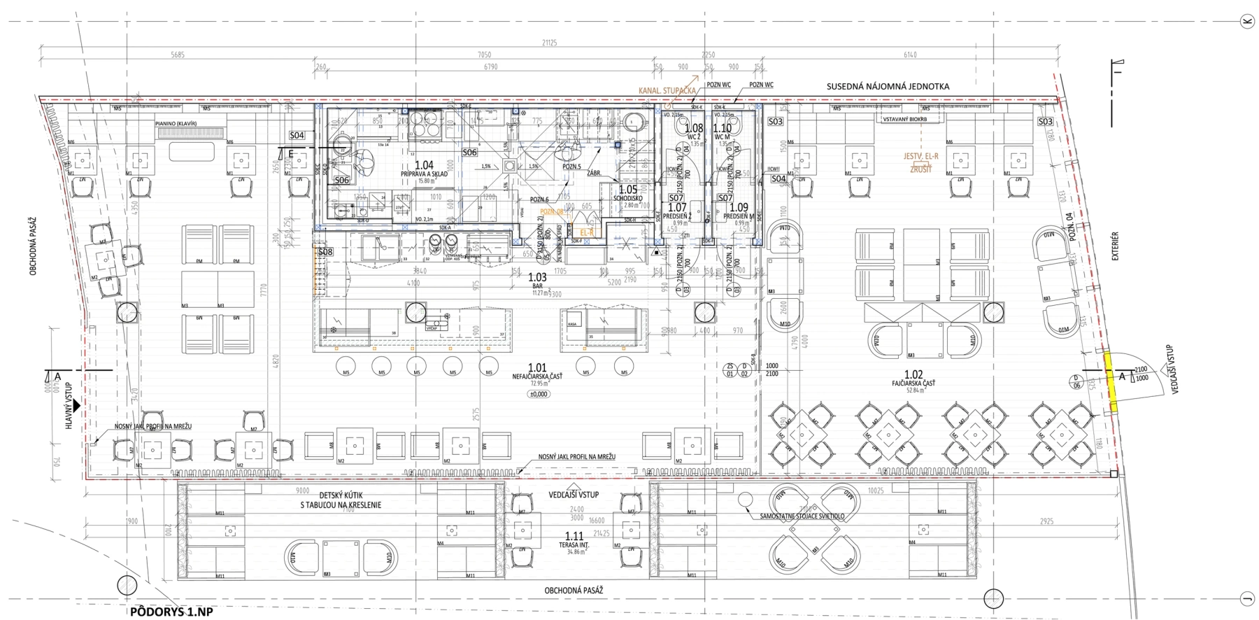
Kaviareň sa delí na fajčiarsku a nefajčiarsku časť a priestor so sedením v pasáži obchodného centra. Je vybavená aj malou kuchyňou s možnosťou prípravy jedál (bistro).

Kaviareň – vizualizácia

 Pôdorysy

Kaviareň – pôdorys Kaviareň – pôdorys

Zaujal Vás tento projekt?

V prípade záujmu o nezáväznú konzultáciu alebo cenovú ponuku za naše služby nás kontaktujte.

Opýtať sa teraz >

Podobné projekty

Všetky projekty >