Coffeeshop Company Pardubice
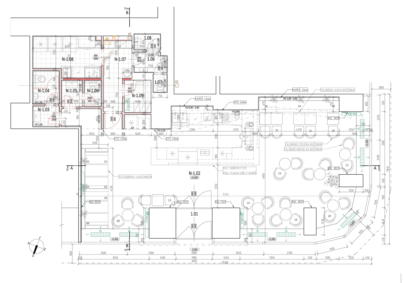
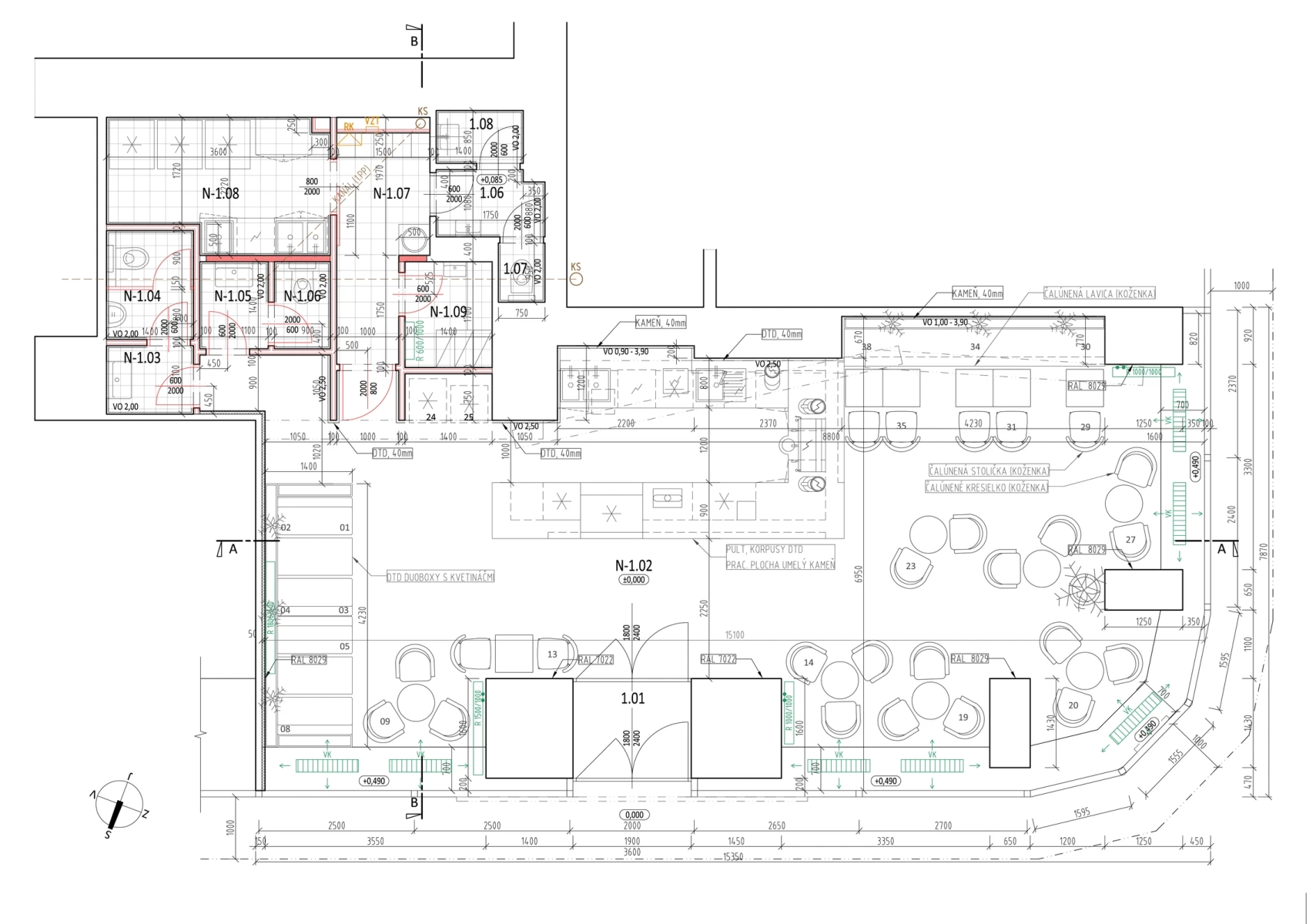
Na interiéri kaviarne v centre Pardubíc je použitých množstvo zaujímavých prvkov: kamenné a drevené obklady, pretierateľné tapety, fotopríbeh v rámikoch na masívnych stĺpoch, „domáce“ rekvizity v policiach nad pultom, debničky s prírodnými dekoráciami, závesy, atypické stropné lampy atď.
Stav
projekt, realizácia
Autor
Martin Medlen
Miesto
Třída míru, Pardubice
Všetky prvky sa rovnocenne podieľajú na rodinnej atmosfére v kombinácii s minimalistickým dizajnom.
gastro
kaviareň
obchod
minimalizmus
priestor
jednoduchosť
drevo
kov
matný
pult
bar
kameň
čalúnený
čierny
zemitý
Zaujal Vás tento projekt?
V prípade záujmu o nezáväznú konzultáciu alebo cenovú ponuku za naše služby nás kontaktujte.