Kozmeticke_upravy_domu_z_80-tych_1.jpg

Kozmetické úpravy domu z 80-tych

Pôvodná stavba je klasický hranáč z obdobia minulého režimu. Ako už susedia z okolitých pozemkov naznačili, táto ulička vo Vinosadoch potrebuje pomaly revitalizovať svoju architektúru a technický stav. 

Stav

štúdia, projekt

Autor

Martin Medlen

Spolupráca

Monika Špániková

Miesto

Vinosady

Pôvodný stav

Dispozične je dom celkom bezproblémový, architektonicky typický pre dobu výstavby. Má ľudskú mierku, na ktorej sa podpisuje hlavne veľkosť domu a celkom slušné proporcie, ktoré sú takmer ako kocka.

Zámer

Funkčne je dom v poriadku, až na pár detailov. Má zbytočne veľa balkónov, komplikovane riešený hlavný vstup a výstup na terasu v záhrade. Pokračujúc k architektúre narážame na fádnu strohosť v kompozícii fasád a v materiálovom prevedení, čo je inak typické pre dobu výstavby. Zámerom našich zákazníkov bolo vysporiadať sa so spomínanými komplikáciami: jednoducho, svojpomocne a nie draho. Okrem kozmetiky na fasádach bolo našou úlohou navrhnúť zľahka zmenu dispozície šitú na mieru pre ich nové požiadavky.

Riešenie

Zredukovali sme množstvo balkónov a použitím ľahkých oceľových doplnkov sme k hlavnému objemu domu pridali rozšírenie terasy a pohodlné schodiská. Samotný objem tiež zmenil tvár úpravami veľkostí okien a pridaním masívnych prístreškov nad garážou a balkónom v záhrade. Pri jedálenskom okne je možné pestovať vonku na strieške bylinky, alebo celú striešku riešiť ako vegetačnú. V záhrade vznikne ľahká oceľová konštrukcia terasy a schodiska, ktorá svojim technickým vzhľadom a ľahkými materiálmi vytvorí príjemný kontrast s hlavným objemom. Moderný vzhľad dopĺňajú textilné rolety, namiesto hliníkových.

Záver

Podobných domov z minulej doby je u nás kopec. Našimi zásahmi sme nechceli stavbu pretvárať a robiť veľkorysé architektonické gestá, ani ju radikálne búrať, či inak tlačiť na pílu trendovosti. Riešením bolo skôr nájsť na dome to, čo je dobré, tj. jeho ľudskú mierku a vyťažiť z nej maximum. Popri tom sme ju podčiarkli novými sviežimi prvkami a materiálmi.

Pôvodný stav ulica
Pôvodný stav ulica
Návrh ulica
Návrh ulica
Pôvodný stav záhrada I
Pôvodný stav záhrada I
Varianty - návrh záhrada I
Varianty - návrh záhrada I
Pôvodný stav - záhrada II
Pôvodný stav - záhrada II
Variant - návrh záhrada II
Variant - návrh záhrada II
Variant - návrh záhrada II
Variant - návrh záhrada II
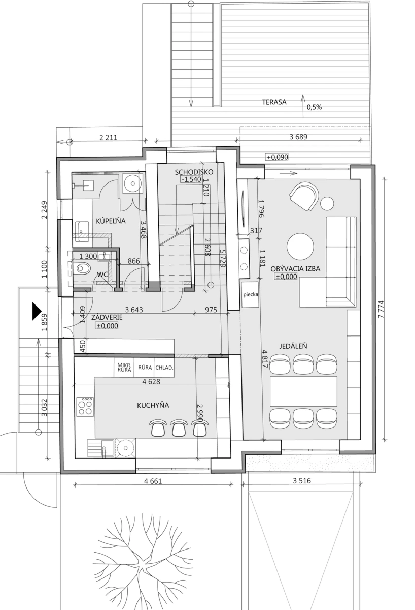
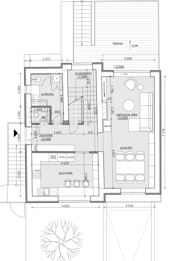
Pôdorys stavebných úprav 1.np
Pôdorys stavebných úprav 1.np
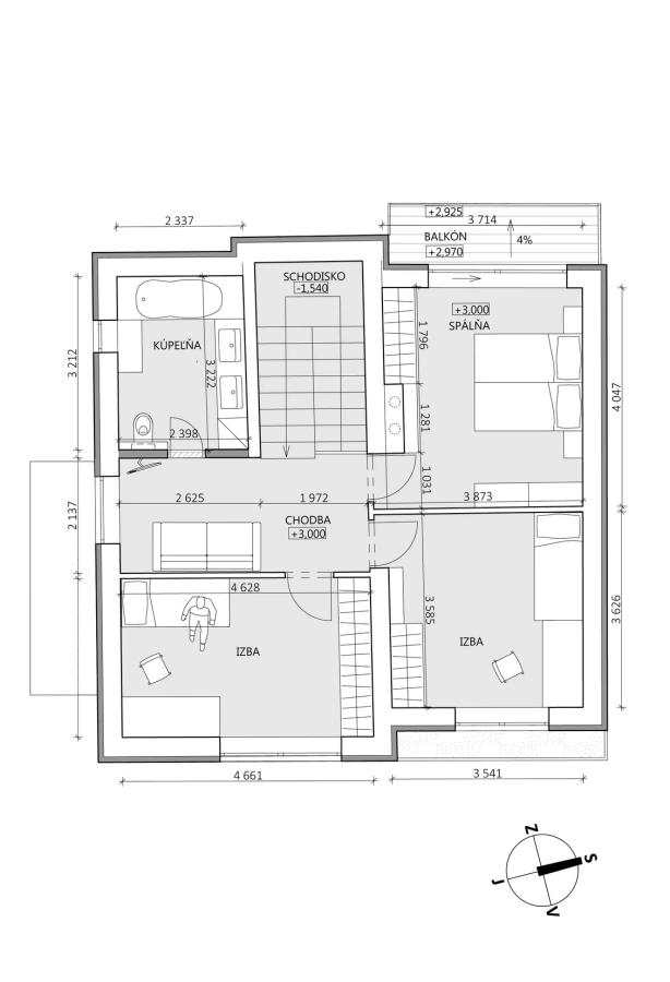
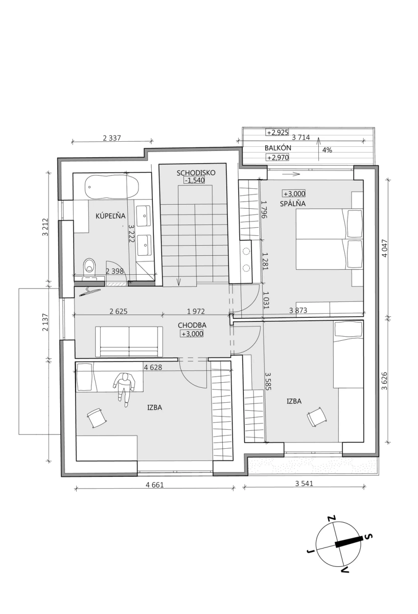
Pôdorys stavebných úprav 2.np
Pôdorys stavebných úprav 2.np

Zaujal Vás tento projekt?

V prípade záujmu o nezáväznú konzultáciu alebo cenovú ponuku za naše služby nás kontaktujte.

Opýtať sa teraz >

Podobné projekty

Všetky projekty >