Návrh interiéru krok za krokom

V tomto článku Vám ukážeme, ako najčastejšie postupujeme pri návrhu interiéru. Postup je overený pre rôzne druhy a veľkosti interiérov.

 

1. Prejednanie Vášho zámeru

Zámerom sú Vaše predstavy o funkcii, veľkosti, špecifických požiadavkách a odhadovanej výške nákladov budúceho interiéru. Prejednanie je dôležité aj pre overenie, či sú Vaše požiadavky realizovateľné v plnom rozsahu. Ďalej je hneď na začiatku dobré vedieť, že pri niektorých zásahoch do stavby môže byť potrebné vydanie stavebného povolenia, rozhodnutia o zmene využitia stavby, alebo podanie ohlásenia stavebnému úradu. Pomôžeme Vám zorientovať sa. Odporúčame stretnutie v riešenom interiéri.

2. Cenová ponuka na štúdiu interiéru a cenový odhad za projekt interiéru

Cenovú ponuku Vám vypracujeme a pošleme elektronicky obvykle do 5 pracovných dní, jej súčasťou sú aj navrhované termíny. K štúdii prikladáme orientačný cenový odhad za projekt. Pre určenie presnej cenovej ponuky na projekt poslúži až hotová štúdia.

° Ak máte záujem o cenovú ponuku bez prejednávania, stručne nás informujte o Vašich predstavách.

3. Štúdia interiéru

Na základe vopred odsúhlasenej ceny a zámeru si môžete záväzne objednať štúdiu, súčasťou objednávky je vyplatenie 30-50% zálohy. Najprv Vám vypracujeme prvotný návrh a predložíme Vám ho na stretnutí. Potom pracujeme na doladení návrhu podľa Vašich prípomienok. Spoločné diskusie zohrávajú dôležitú rolu, veľmi radi Vás nimi budeme sprevádzať. V štúdii diskutujeme na témy: účel, funkčnosť, ergonómia, ekonómia, trvalá udržateľnosť, estetika, technické a materiálové spracovanie a viac. Účelom štúdie je získať grafický a textový prehľad o tom, ako bude priestor fungovať, vyzerať a z akých prvkov bude pozostávať. Štúdiu pokladáme za hotovú, keď je naplnený Váš zámer a ste spokojní. Dovtedy pracujeme na úpravách, hoci aj radikálnych.

Štúdia interiéru takmer vždy obsahuje pôdorys a vizualizácie. Zvyšok obsahu je závislý od konkrétneho prípadu. Súčasťou je: popis stavebných úprav v riešenom priestore, výber konkrétnych materiálov na podlahy, steny, stropy, svietidiel, výplní stavebných otvorov (napr. okná, dvere) a typizovaného nábytku. Ďalej obsahuje tvarové návrhy atypického nábytku s popisom použitých materiálov a ich základné rozmery.

° Počas práce na štúdii plánujeme dlhodobé úžitkové, kvalitatívne a estetické hodnoty Vášho priestoru. Priamo ovplyvňuje náklady na jeho realizáciu a preto ju označujeme ako najdôležitejšiu súčasť našej spolupráce.

výsledkom štúdie sú vizualizácie
výsledkom štúdie sú vizualizácie

4. Cenová ponuka na projekt interiéru a autorský dozor

Dokončená štúdia slúži ako podklad pre nacenenie projektu a autorského dozoru. Podľa nej sme schopní určiť skutočný objem týchto prác. Cenovú ponuku Vám obvykle dodáme spolu s finálnou štúdiou.

5. Projekt interiéru

Súčasťou objednávky projektu je vyplatenie zálohy 30-50%. Niektoré interiéry sa bez projektu nezaobídu (stavebné povolenie, náročná koordinácia subdodávok realizácie a podobne). My ho odporúčame vždy, až na výnimky veľmi jednoduchých priestorov. Projekt je realizačným podkladom pre všetky stavebné práce a subdodávky pri realizácii interiéru.

° Projekt interiéru je podrobný návod pre jeho úspešnú realizáciu. Bez návodu vzniká riziko odchýlenia od štúdie a improvizácia pri realizácii.

 

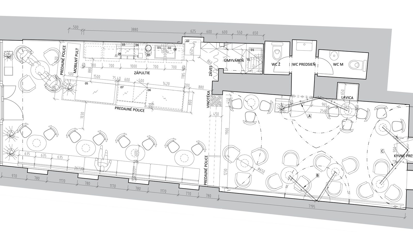
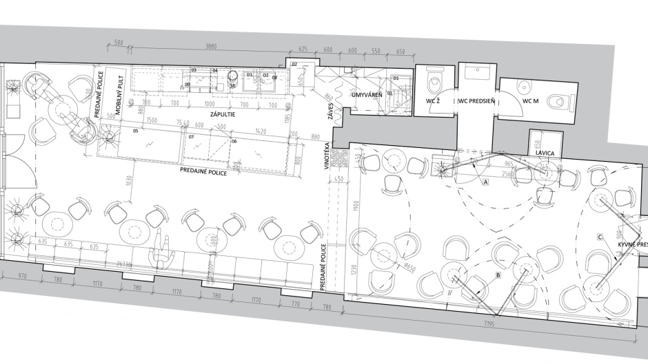
podrobný pôdorys projektu
podrobný pôdorys projektu

 6. Autorský dozor pri realizácii

Realizácia je vždy spojením rôznych subdodávok (stavebná, stolárska, zámočnícka firma a viac.), ktoré potrebujú riadenie nielen Vami, alebo povolanou osobou realizátora. Komplexné súvislosti v priestore najviac pozná práve jeho autor. Autorským dozorom chápeme kontrolné dni pri realizácii, komunikáciu so zákazníkom, realizátorom, prípadne so stavebným dozorom a subdodávateľmi.

° Autor pozná súvislosti všetkých stavebných úprav a subdodávok interiéru, preto by pre správnu koordináciu diela a úspešnú realizáciu nemal chýbať.

realizovaný interiér
realizovaný interiér
interiér
služby
architekt